- Tylko online
Masz pytania? Chciałbyś negocjować cenę
Zadzwoń! 577 575 011
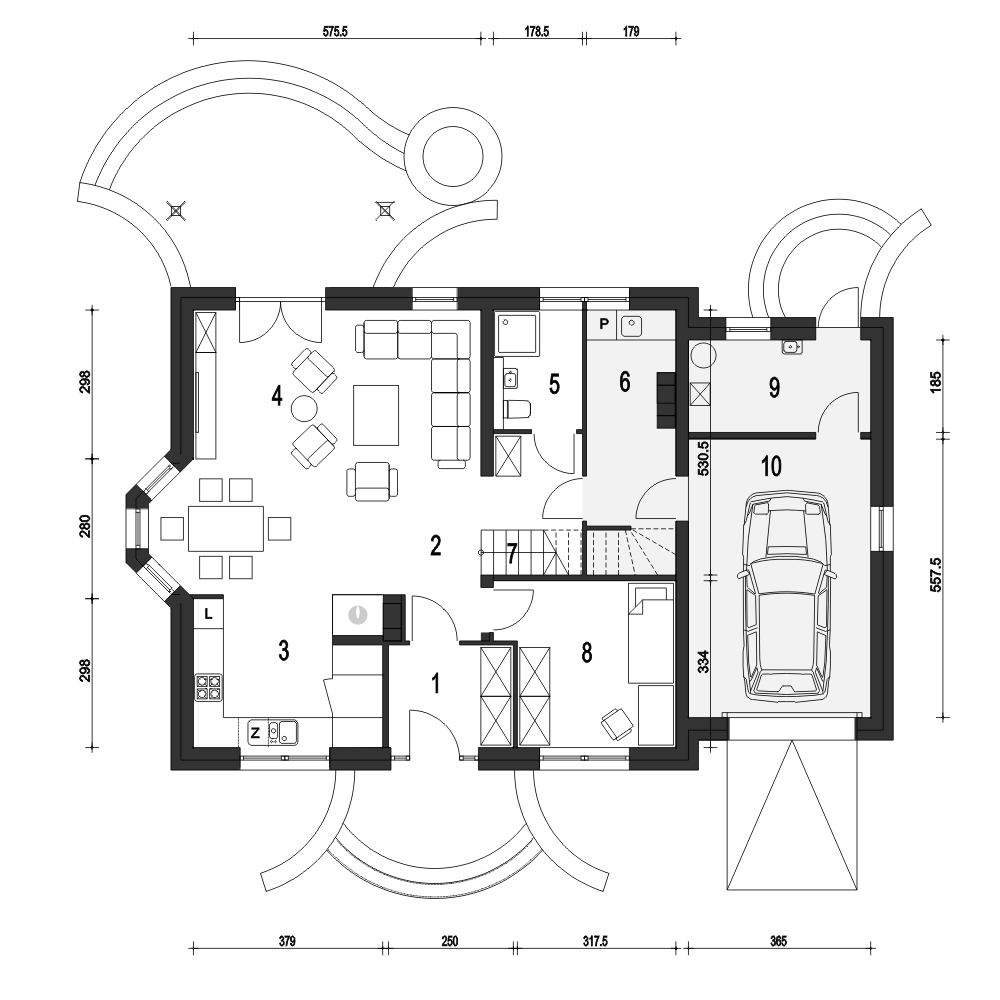
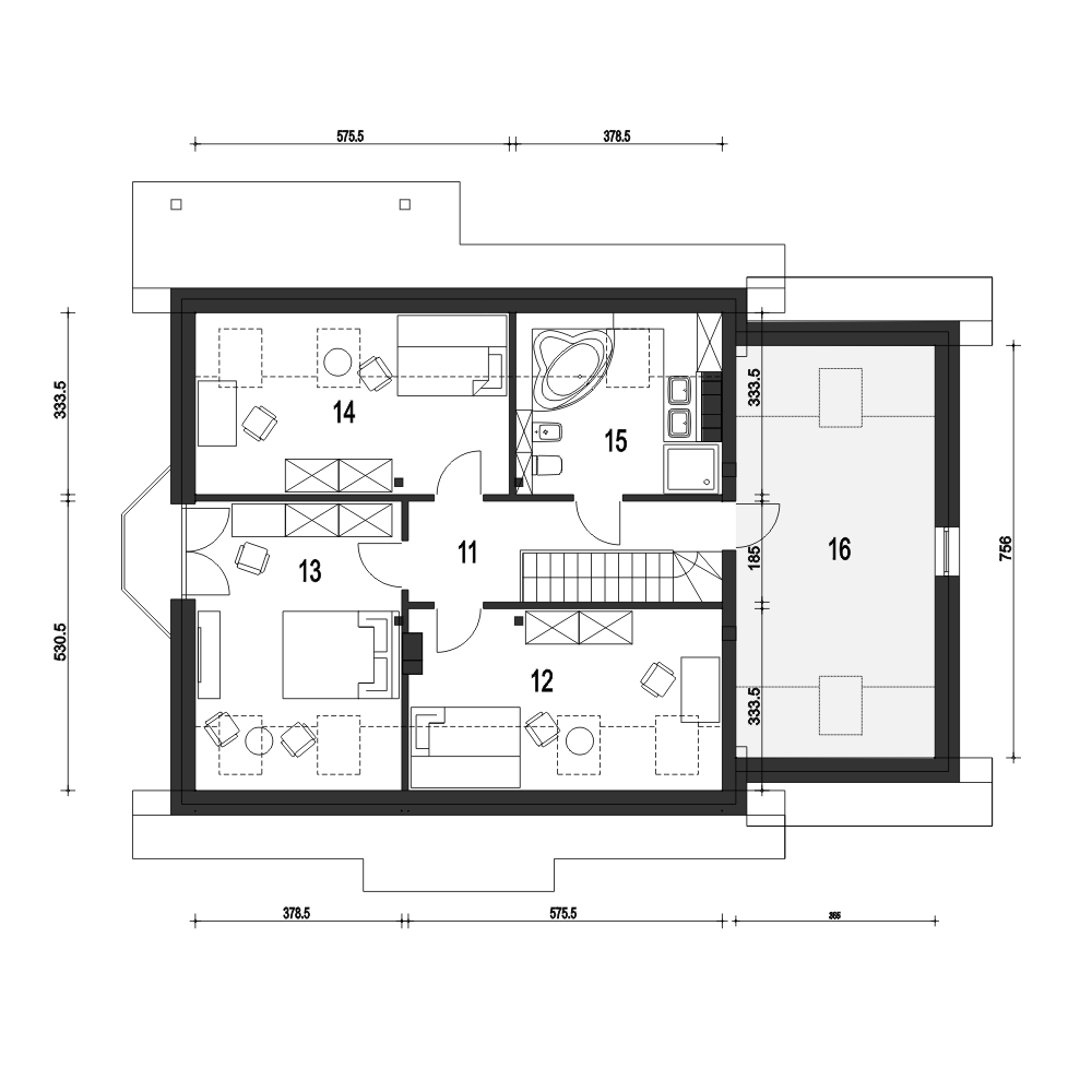
Dom Dla Ciebie 2 w wariancie z przybudowanym garażem, to projekt domu dwukondygnacyjnego - z poddaszem użytkowym. Ten atrakcyjny dom zaprojektowany jest dla 4ro osobowej rodziny z zachowaniem podziału na dwie strefy: dzienną na parterze i nocną na poddaszu. Na parterze tego domu zaprojektowany mamy wiatrołap w z miejscem na wnękowe szafy, następnie hol z którego dostaniemy się do kuchni ze spiżarnią, do salonu z jadalnią i kominkiem oraz do pokoju usytuowanego od frontu budynku - pokój ten może być wykorzystywany jako gabinet, np na etapie adaptacji. Przy schodach mamy przewidzianą niewielką ale wygodną łazienkę z prysznicem, a także przejściową pralnię, z której dostaniemy się do garażu oraz kotłowni. Poddasze tego domu obejmuje trzy ustawne i wygodne pokoje, a przy schodach zaprojektowano ogólnie dostępną łazienkę z narożną wanną i prysznicem. Nad garażem mamy do dyspozycji strych który można wykorzystać, np.: na etapie adaptacji jako dodatkowe pomieszczenie: pokój, garderobę lub pomieszczenie rekreacyjne. Poddasze zaprojektowane jest pod dwuspadowym dachem na tradycyjnej więźbie ze śianką kolankową. Projekt Dom Dla Ciebie 2, to idealna propozycją domu dla osób poszukujących ekonomicznego w budowie i energooszczędnego domu o stylowej, współczesnej architekturze i przemyślanej funkcji.fundamenty: BETONOWE ściany zewnętrzne: POROTHERM+STYROPIAN TERMO ORGANIKA rodzaj stropu: TERIVA I elewacje: TYNK STRUKTURALNY, OKŁADZINA KLINKIEROWA pokrycie dachu: DACHÓWKA CEMENTOWA, CERAMICZNA lub BLACHA DACHÓWKO PODOBNA
