- Tylko online
Masz pytania? Chciałbyś negocjować cenę
Zadzwoń! 577 575 011
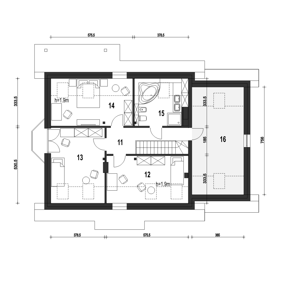
Dom Dla Ciebie 2 w2 (wersja 2) w wariancie z przybudowanym garażem, to projekt domu dwukondygnacyjnego - z poddaszem użytkowym. Ten atrakcyjny dom zaprojektowany jest dla 4ro osobowej rodziny z zachowaniem podziału na dwie strefy: dzienną na parterze i nocną na poddaszu. W stosunku do poprzedniej wersji projektu mamy tu przewidziane zmiany funkcji w obrębie parteru. Projekt przewiduje większa kuchnię, większy salon z jadalnią. Ponadto zmieniona została lokalizacja pomieszczeń łazienki - w tej wersji zlokalizowane są od frontu oraz pokoju - w tej wersji pokój zlokalizowany został od strony ogrodu. Poza tymi zmianami reszta pomieszczeń jest podobny, tzn wiatrołap i schody pozostały w zasadzie bez zmian, a hol główny jest obszerniejszy i możemy dostać się nim bezpośrednio do garażu. Poddasze tego domu obejmuje trzy ustawne i wygodne pokoje sypialne i ogólnie dostępną łazienkę z narożną wanną i prysznicem. Nad garażem mamy do dyspozycji strych który bardzo łatwo można wykorzystać, np.: na etapie adaptacji jako dodatkowe pomieszczenie: pokój, garderobę lub pomieszczenie rekreacyjne. Poddasze zaprojektowane jest pod dwuspadowym dachem na tradycyjnej więźbie ze ścianką kolankową. Projekt Dom Dla Ciebie 2 w2, to idealna propozycją domu dla osób poszukujących ekonomicznego w budowie i energooszczędnego domu o stylowej, współczesnej architekturze i przemyślanej funkcji.fundamenty: BETONOWE ściany zewnętrzne: POROTHERM+STYROPIAN TERMO ORGANIKA rodzaj stropu: TERIVA I elewacje: TYNK STRUKTURALNY, OKŁADZINA KLINKIEROWA pokrycie dachu: DACHÓWKA CEMENTOWA, CERAMICZNA lub BLACHA DACHÓWKO PODOBNA
