- Tylko online
Masz pytania? Chciałbyś negocjować cenę
Zadzwoń! 577 575 011
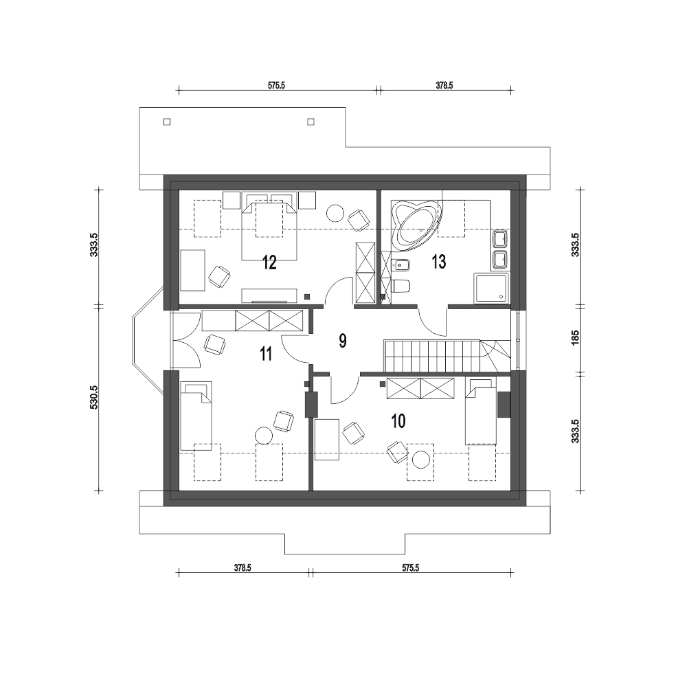
Dom Dla Ciebie 2 w2 (wersja 2) w wariancie (B) bez garażu, to projekt atrakcyjnego domu dwukondygnacyjnego - z poddaszem użytkowym. Dom zaprojektowany jest dla 4ro osobowej rodziny z zachowaniem podziału na dwie strefy: dzienną na parterze i nocną na poddaszu. W stosunku do poprzedniej wersji projektu mamy tu przewidziane zmiany funkcji w obrębie parteru. Projekt przewiduje większa kuchnię, większy salon z jadalnią z którego możemy wyjść na zadaszony taras ogrodowy. Ponadto zmieniona została lokalizacja pomieszczeń łazienki i kotłowni - w tej wersji zlokalizowane są od frontu a pokoju zaprojektowany został od strony ogrodu. Poza tymi zmianami reszta pomieszczeń jest podobna, w tym wiatrołap i schody pozostały w zasadzie bez zmian, a hol główny jest obszerniejszy i możemy dostać się nim bezpośrednio do garażu. Poddasze domu obejmuje trzy ustawne i wygodne pokoje sypialne i ogólnie dostępną łazienkę z narożną wanną i prysznicem. Poddasze zaprojektowane jest pod dwuspadowym dachem na tradycyjnej więźbie ze ścianką kolankową. Projekt Dom Dla Ciebie 2 w2 bez garażu, to idealna propozycją domu dla osób poszukujących ekonomicznego w budowie i energooszczędnego domu o stylowej, współczesnej architekturze i przemyślanej funkcji.
