- Tylko online
Masz pytania? Chciałbyś negocjować cenę
Zadzwoń! 577 575 011
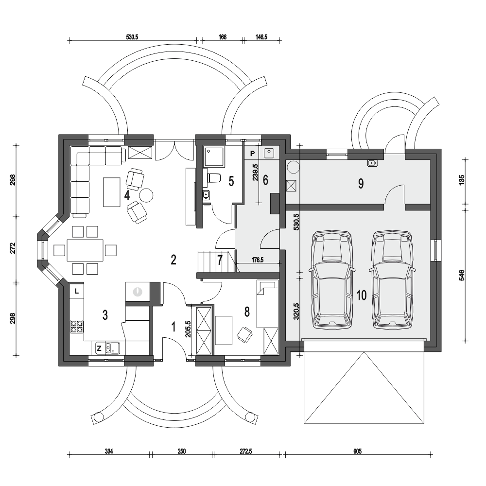
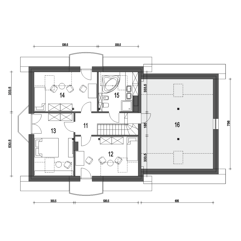
Dom Dla Ciebie 3 w wariancie z garażem dwustanowiskowym to mniejsza wersja projektu Dom Dla Ciebie 1. Ten uroczy dom zaprojektowany na rzucie kwadratu, ma ok 123 m2 i przeznaczony jest dla 4ro osobowej rodziny. Dom Dla Ciebie 3, zaprojektowany jest z zachowaniem podziału na dwie strefy: dzienną na parterze i nocną na poddaszu. Na parterze mamy zaprojektowany wiatrołap z wnękowymi szafami, następnie mamy wygodny hol z którego dostaniemy się do kuchni ze spiżarnią, do salonu z jadalnią i kominkiem. Na parterze mamy jeszcze do dyspozycji pokój usytuowany od frontu, który może być wykorzystywany np jako gabinet. Przy schodach mamy przewidzianą łazienkę z prysznicem oraz przejściową pralnię z której dostaniemy się do garażu i kotłowni. Poddasze obejmuje trzy ustawne, doświetlone pokoje - każdy z własnym balkonem. Przy schodach zaprojektowano ogólnie dostępną łazienkę z narożną wanną i prysznicem. Nad garażem mamy do dyspozycji strych do którego dostaniemy się ze spocznika schodów prowadzących na poddasze. Strych z łatwością można wykorzystać na etapie adaptacji jako dodatkowe pomieszczenie np.: pokój, garderobę lub pomieszczenie rekreacyjne. Poddasze zaprojektowane jest pod dwuspadowym dachem opartym na tradycyjnej więźbie i ściance kolankowej o wysokości ok 0,9m. Projekt Dom Dla Ciebie 3, to idealna propozycją domu dla osób poszukujących tradycyjnego domu o stylowej architekturze i przemyślanej funkcji. Projekt Dom Dla Ciebie 3 zaprojektowany jest w standardzie projektów energooszczędnych.
