- Tylko online
Masz pytania? Chciałbyś negocjować cenę
Zadzwoń! 577 575 011
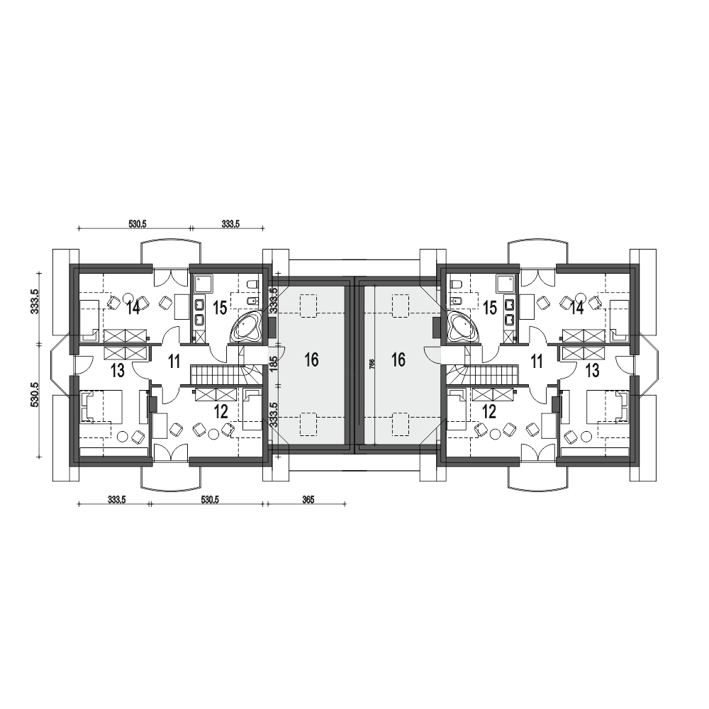
(Uwaga: projekty typu bliźniak oferujemy jako domy dwulokalowe, projekt można zamówić również w zabudowie bliźniaczej) Dom Dla Ciebie 4 z garażem jednostanowiskowym w wariancie z dwoma segmentami w układzie bliźniaczym. To stylowy, dwulokalowy dom z poddaszem użytkowym. Każdy z segmentów zaprojektowany jest z zachowaniem podziału na dwie strefy: dzienną na parterze i nocną na poddaszu. Na parterze mamy zaprojektowany wiatrołap, hol, kuchnia ze spiżarnią oraz salon z jadalnią i kominkiem. Ponadto mamy to do dyspozycji pokój usytuowany od frontu, który może być wykorzystywany np.: jako gabinet. Przy schodach zaprojektowana jest łazienka z prysznicem oraz przejściowa pralnia z której dostaniemy się do garażu i kotłowni. Poddasze obejmuje trzy ustawne pokoje - każdy z własnym balkonem, a przy schodach zaprojektowano ogólnie dostępną łazienkę z narożną wanną i prysznicem. Nad garażem mamy zaprojektowany strych do którego dostaniemy się ze spocznika schodów prowadzących na poddasze. Strych z łatwością można wykorzystać na etapie adaptacji jako dodatkowe pomieszczenie użytkowe. Poddasze zaprojektowane jest pod dwuspadowym dachem opartym na tradycyjnej więźbie i ściance kolankowej o wysokości ok 0,9m. Projekt Dom Dla Ciebie 4 w prezentowanym wariancie, to idealna propozycja dla osób poszukujących tradycyjnego domu o stylowej architekturze i przemyślanej funkcji. Projekt zaprojektowany jest w standardzie projektów energooszczędnych.
