- Tylko online
Masz pytania? Chciałbyś negocjować cenę
Zadzwoń! 577 575 011
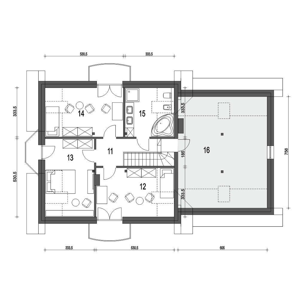
Dom Dla Ciebie 4 z garażem dwustanowiskowym, to stylowy dom z poddaszem użytkowym. Dom Dla Ciebie 4, zaprojektowany jest z zachowaniem podziału na dwie strefy: dzienną na parterze i nocną na poddaszu. Na parterze mamy zaprojektowany wiatrołap, hol, kuchnia ze spiżarnią oraz salon z jadalnią i kominkiem. Ponadto mamy to do dyspozycji pokój usytuowany od frontu, który może być wykorzystywany np.: jako gabinet. Przy schodach zaprojektowana jest łazienka z prysznicem oraz przejściowa pralnia z której dostaniemy się do garażu i kotłowni. Poddasze obejmuje trzy ustawne pokoje - każdy z własnym balkonem, a przy schodach zaprojektowano ogólnie dostępną łazienkę z narożną wanną i prysznicem. Nad garażem mamy zaprojektowany strych do którego dostaniemy się ze spocznika schodów prowadzących na poddasze. Strych z łatwością można wykorzystać na etapie adaptacji jako dodatkowe pomieszczenie użytkowe. Poddasze zaprojektowane jest pod dwuspadowym dachem opartym na tradycyjnej więźbie i ściance kolankowej o wysokości ok 0,9m. Projekt Dom Dla Ciebie 4, to idealna propozycją domu dla osób poszukujących tradycyjnego domu o stylowej architekturze i przemyślanej funkcji. Projekt Dom Dla Ciebie 4 zaprojektowany jest w standardzie projektów energooszczędnych.
