- Tylko online
Masz pytania? Chciałbyś negocjować cenę
Zadzwoń! 577 575 011
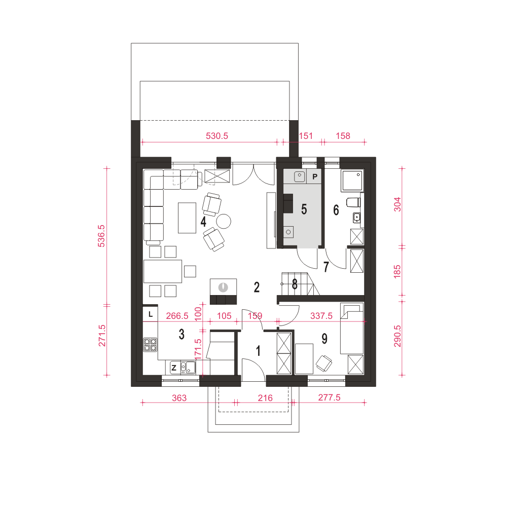
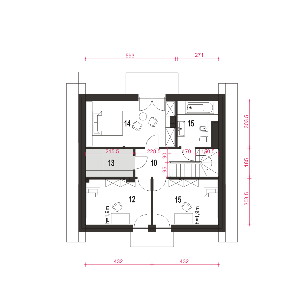
Dom Dla Ciebie 6 to projekt domu z użytkowym poddaszem dla 4-5cio osobowej rodziny. To propozycja domu o często wyszukiwanej powierzchni użytkowej około 110 m2. Tak jak pozostałe projekty z tej serii, Dom Dla Ciebie 6 zaprojektowany został z zachowaniem podziału na dwie strefy użytkowe ogólnie dostępną na parterze i prywatną na poddaszu. Na parterze mamy zaprojektowany wiatrołap z szafą wnękową, hol, kuchnię ze spiżarnią, salon z jadalnią i kominkiem oraz pokój zlokalizowany od frontu domu, do wykorzystania jako gabinet. Przy schodach prowadzących na poddasze, zlokalizowano kotłownię z pralnią i wygodna łazienkę. Na poddaszu mamy zaprojektowane trzy ustawne i dobrze doświetlone pokoje - każdy z własnym balkonem. Zaprojektowano tu też niewielki strych z możliwością wykorzystania go na garderobę oraz ogólnie dostępną łazienka z pełnym wyposażeniem. Poddasze zaprojektowane jest pod dwuspadowym dachem zaprojektowanym na tradycyjnej więźbie dachowej opartej na ściance kolankowej o wysokości około 1m. Projekt domu Dom Dla Ciebie 6, jest idealna propozycja domu energooszczędnego, taniego w budowie i w użytkowaniu. Ogromna zaletą projektu jest prosta konstrukcja domu i dobrze zaprojektowana funkcja.fundamenty: BETONOWE ściany zewnętrzne: POROTHERM+STYROPIAN TERMO ORGANIKA rodzaj stropu: TERIVA I elewacje: TYNK STRUKTURALNY, OKŁADZINA KLINKIEROWA pokrycie dachu: DACHÓWKA CEMENTOWA, CERAMICZNA lub BLACHA DACHÓWKO PODOBNA
