Informujemy, iż nasz sklep internetowy wykorzystuje technologię plików cookies a jednocześnie nie zbiera w sposób automatyczny żadnych informacji, z wyjątkiem informacji zawartych w tych plikach (tzw. „ciasteczkach”).

Dom z Widokiem 3 wariant B

  • Tylko online

Dane techniczne

powierzchnia
210.95 m²
wysokość
8.62 m
kąt dachu
25 °
szerokość działki
27.68 m
Liczba pokoi
5
Powierzchnia zabudowy
209.96
kondygnacje
piętrowe
garaż
z garażem 2 st.
dach
dach wielospadowy
konstrukcja
murowane
zabudowa
domy wolnostojące
piwnica
bez piwnicy
kubatura
1150.23 m³
dostępne odbicie lustrzane
Nie
Pow. użytkowa
210.95 m²
długość działki
23.43 m
Liczba łazienek
3
Pow. netto
220.55
Powierzchnia dachu
340.8 m²

Opis projektu

Wariant projektu głębszy, ze zmienionym układem pomieszczeń na parterze i piętrze, pompa ciepła. Projekt dostosowany do standardu NF40 w zakresie projektu architektoniczno-budowlanego.

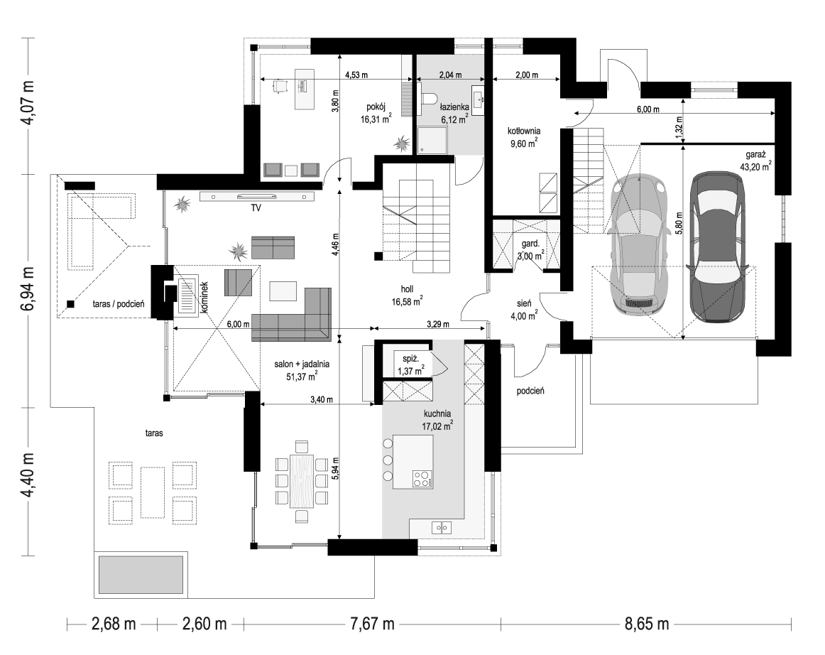
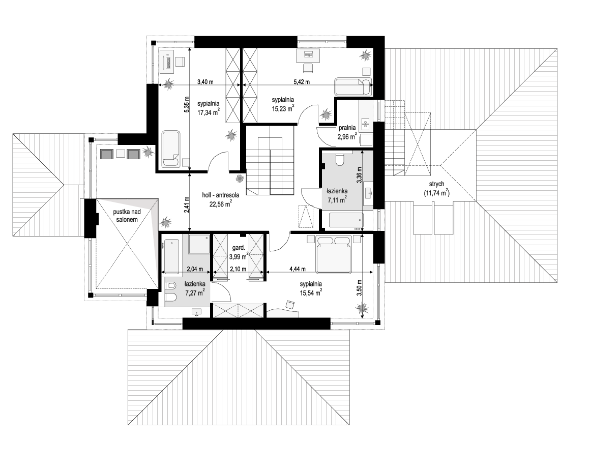
Rzuty

Kondygnacja 1
Kondygnacja 3

Elewacje

Sytuacja

O autorze projektu Dom z Widokiem 3 wariant B

9 450 zł

Tylko u nas możesz negocjować cenę!
Skorzystaj z tej możliwości.

Lustrzane odbicie: niedostępne.

Masz dodatkowe pytania?
Zadzwoń lub zamów rozmowę.

Zamów rozmowę

Pomożemy Ci dopasować do twoich potrzeb mymarzony projekt, wpisz swój numer telefonu nasz konsultant oddzwoni.

Negocjuj cenę projektu Dom z Widokiem 3 wariant B

Zapytaj pytanie o projekt Dom z Widokiem 3 wariant B

Oceny i komentarze

Napisz swoją opinię