- Tylko online
Masz pytania? Chciałbyś negocjować cenę
Zadzwoń! 577 575 011
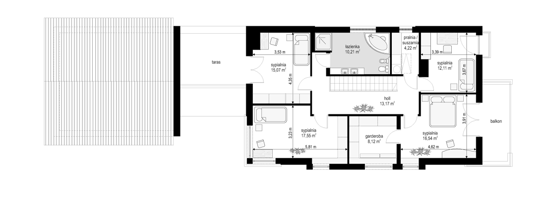
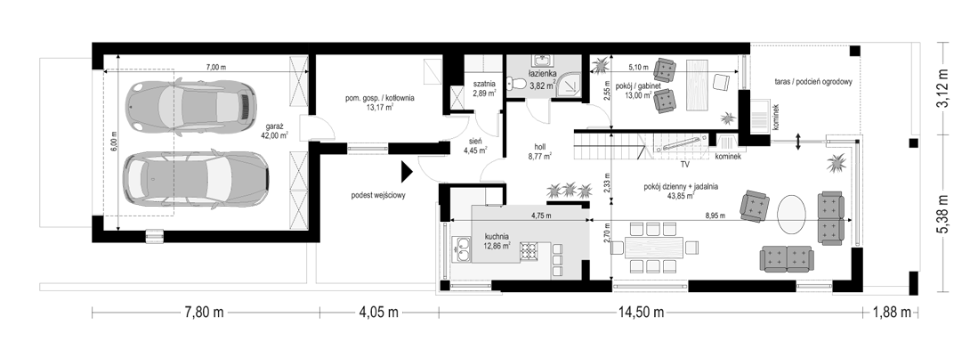
Projekt domu Lugano to willa jednorodzinna dla rodziny 4- 5-osobowej. Piętrowy budynek przykryty został dwuspadowym symetrycznym dachem z dachówki ceramicznej. Dom ma nowoczesny charakter, zaprojektowany został z przeznaczeniem dla wąskich działek, na których budynek musi mieć formę długiego wąskiego prostopadłościanu. Część garażowa parterowa została wyciągnięta przed główną bryłę budynku, urozmaicając w ten sposób część frontową. Od strony ogrodu bryłę domu ozdabia narożne okno salonu, podcień i taras piętra na bocznych słupach. Dwuspadowy łagodny dach z dużymi okapami dodaje całemu budynkowi dynamiki. Wnętrze projektu domu Lugano podzielono na jednoprzestrzenną część dzienną na parterze, z ciekawymi, jednobiegowymi schodami, stanowiącymi niewątpliwą ozdobę salonu, oraz część nocną piętra z czterema sypialniami i dużą rodzinną łazienką. Domek pomimo niewielkiej powierzchni jest zaprojektowany funkcjonalnie, a same pomieszczenia są słusznej wielkości. Na parterze obok salonu swoje miejsce znalazł dodatkowy pokój - gabinet lub sypialnia gościnna. Garaż połączono z resztą domu przez duże pomieszczenie techniczne. Z pokoju dziennego można podziwiać ogród przez duże przeszklone otwarcie, połączone z podcieniem z kominkiem zewnętrznym i tarasem. Projekt domu Lugano dostępny jest również w wersji odbicia lustrzanego.
Te uskoki dachu ładnie wyglądają, nie podobały mi się zielone dachy ale akurat w przypadku Domu w brzozach idealnie się to komponuje z białą elewacją. Zastanawiam się czy nie kupić czegoś takiego. Bardzo oryginalny projekt gotowy, naprawdę podoba mi się. Projekt Dom w brzozach to cos dla mnie i mojej rdziny.
Podoba mi się całokształt, ale szczególnie w tym projekcie z Archido zasługujące na pochwałę jest rozplanowanie poddasza. Funkcjonalna strefa nocna jest doskonałym miejscem do odpoczynku, a jedna sypialnia z łazienką i jeszcze naprawdę dużą garderobą do dodatkowe miejsce gdzie można mieć chociaż odrobinę prywatnoości. pozdrawiam serdecznie.
Tez nie sądzziałm, ze jasnozielony (wydawałoby się mało wyrazisty) dach w połaczeniu z jasną stoalrką i jasnymi, kremowymi ścianami będzie wyglądał mdło i nijako, a tu naprawdę efekt jest zaskakujący! Brawo!
Wreszcie jakaś oryginalna, inna, zupełnie nowoczesna kolorystyka na Archido!!! Zielień i w dodatku taka jasna rzadko jest spotykana pzy dachach, a w połączeniu z jasnym drewnem i białymi ścianami wyglądą obłędnie. Chyba przemaluję swój dom i wymienię dach. Nowa inspiracja ;-P

duży salon
Dom w brzozach naprawdę zawraca uwagę już od zewnątrz. Fajny dwuspadowy dach dodaje mu myślę wysokości i delikatnie wysmukla ogólną sylwetkę domu. Niesamowite przeszklenia jeżeli chodzi o taras, myślę, że dużo światła przez to będzie dopływać do olbrzymiego i przestronnego salonu. Rzadko można spotkać projekty o takiej powierzchni części dziennej.