Informujemy, iż nasz sklep internetowy wykorzystuje technologię plików cookies a jednocześnie nie zbiera w sposób automatyczny żadnych informacji, z wyjątkiem informacji zawartych w tych plikach (tzw. „ciasteczkach”).

Willa Anna Maria wariant C

  • Tylko online

Dane techniczne

powierzchnia
286.17 m²
wysokość
8.94 m
kąt dachu
35.7 °
szerokość działki
25.58 m
Liczba pokoi
7
Powierzchnia zabudowy
222.54
kondygnacje
parterowe
garaż
z garażem 2 st.
dach
dach dwuspadowy
konstrukcja
murowane
zabudowa
domy wolnostojące
piwnica
bez piwnicy
kubatura
1512 m³
dostępne odbicie lustrzane
Nie
Pow. użytkowa
286.17 m²
długość działki
24.59 m
Liczba łazienek
3
Pow. netto
294.56
Powierzchnia dachu
261.5 m²

Opis projektu

Wariant projektu bez piwnicy.

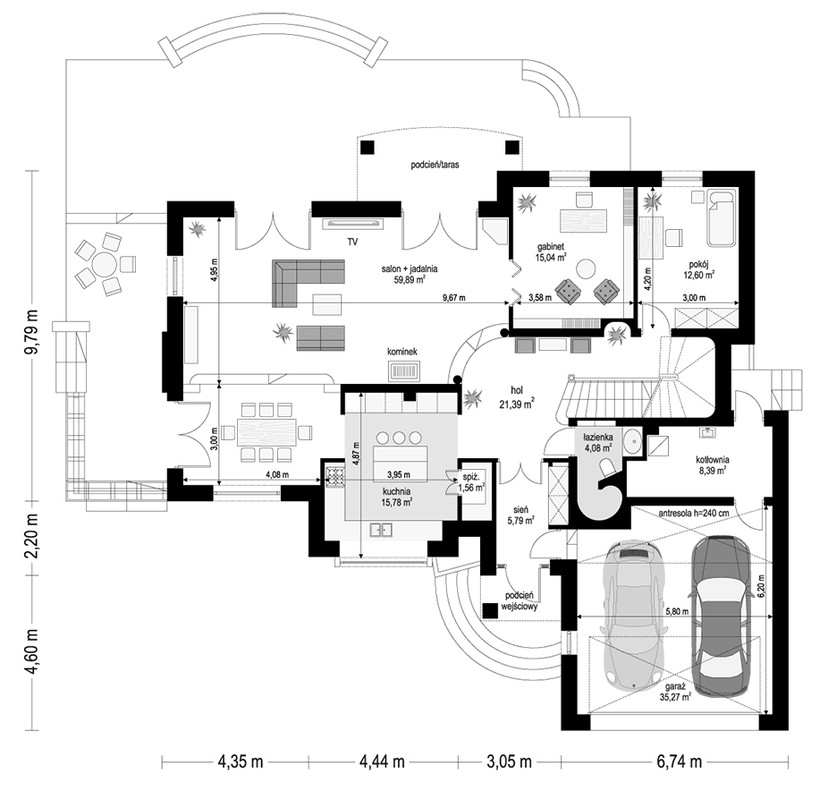
Rzuty

Kondygnacja 1
Kondygnacja 3

Elewacje

Sytuacja

O autorze projektu Willa Anna Maria wariant C

10 970 zł

Tylko u nas możesz negocjować cenę!
Skorzystaj z tej możliwości.

Lustrzane odbicie: niedostępne.

Masz dodatkowe pytania?
Zadzwoń lub zamów rozmowę.

Zamów rozmowę

Pomożemy Ci dopasować do twoich potrzeb mymarzony projekt, wpisz swój numer telefonu nasz konsultant oddzwoni.

Negocjuj cenę projektu Willa Anna Maria wariant C

Zapytaj pytanie o projekt Willa Anna Maria wariant C

Oceny i komentarze

Napisz swoją opinię