- Tylko online
Masz pytania? Chciałbyś negocjować cenę
Zadzwoń! 577 575 011
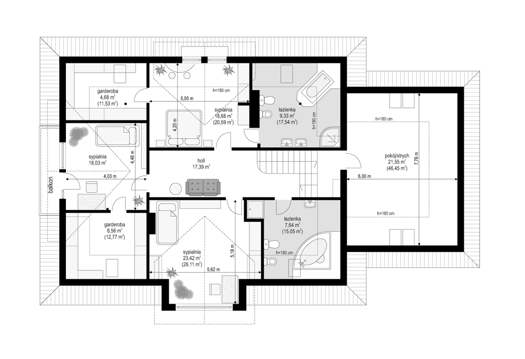
Projekt domu Benedykt 4 to wersja wariantowa domu Benedykt. W projekcie powiększono część garażową a elewacje urozmaicono trzema dodatkowymi lukarnami w głównej bryle budynku - po jednej na każdej elewacji domu. Dzięki temu żadna sypialnia na poddaszu nie ma skośnych ścian. Projekt posiada dwie wersje zagospodarowania poddasza. Dostępna jest także wersja projektu Benedykt 4 w odbiciu lustrzanym. Zapraszamy do zapoznania się z pełną ofertą pracowni MG Projekt: projekt domu Benedykt, projekt domu Benedykt 2, projekt domu Benedykt 3, projekt domu Benedykt 4, projekt domu Benedykt 5, projekt domu Benedykt Bliźniak.
