- Tylko online
Masz pytania? Chciałbyś negocjować cenę
Zadzwoń! 577 575 011
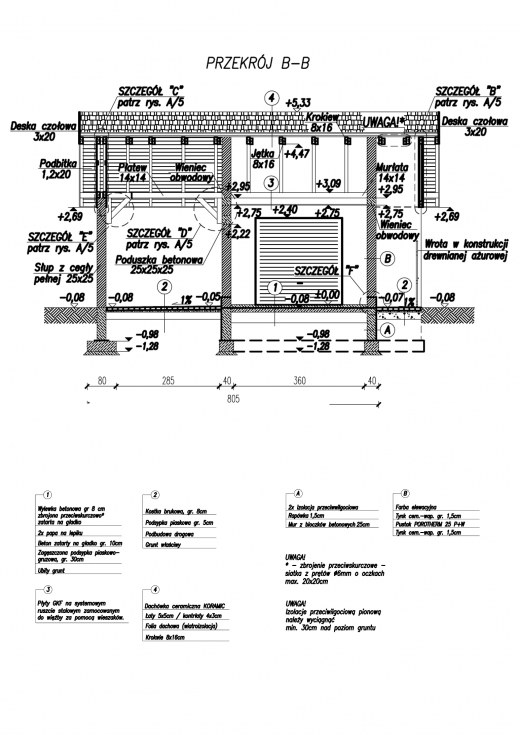
Garaż jednostanowiskowy ze składem na drewno i odpady oraz wiatą.
