- Tylko online
Masz pytania? Chciałbyś negocjować cenę
Zadzwoń! 577 575 011
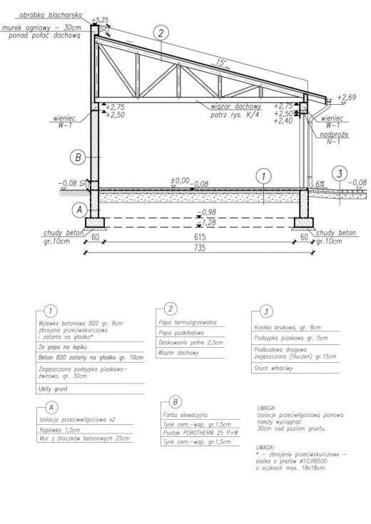
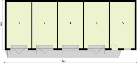
Garaż czterostanowiskowy z pomieszczeniem gospodarczym.Brama garażowa o wymiarach 2,4x2,4m. Projekt garażu składa się z czterech egzemplarzy a w tym części architektonicznej, konstrukcyjnej i instalacji wewnętrznej elektrycznej. W projekcie załączone są podstawowe zestawienie stali, drewna i stolarki okienno-drzwiowej. Do projektu dołączamy bezpłatną zgodę na wprowadzenie zmian, oświadczenie projektantów o wykonaniu projektu zgodnie z obowiązującymi normami i przepisami oraz kserokopie uprawnień projektantów wraz z aktualnym wpisem do izby.
