- Tylko online
Masz pytania? Chciałbyś negocjować cenę
Zadzwoń! 577 575 011
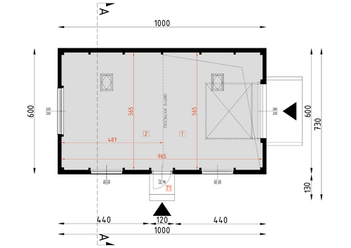
BG11 nowoczesny budynek gospodarczy z garażem jednostanowiskowym, w konstrukcji stalowej.
