Dane techniczne
- powierzchnia
- 33.48 m²
- wysokość
- 6.84 m
- kąt dachu
- 38 °
- szerokość działki
- 13.65 m
- Powierzchnia zabudowy
- 54.18
- kondygnacje
- z poddaszem do adaptacji
- garaż
- z garażem 2 st.
- dach
- dach dwuspadowy
- konstrukcja
- szkieletowe
- zabudowa
- domy wolnostojące
- piwnica
- bez piwnicy
- kubatura
- 279 m³
- dostępne odbicie lustrzane
- Nie
- Pow. użytkowa
- 33.48 m²
- długość działki
- 16.15 m
Opis projektu
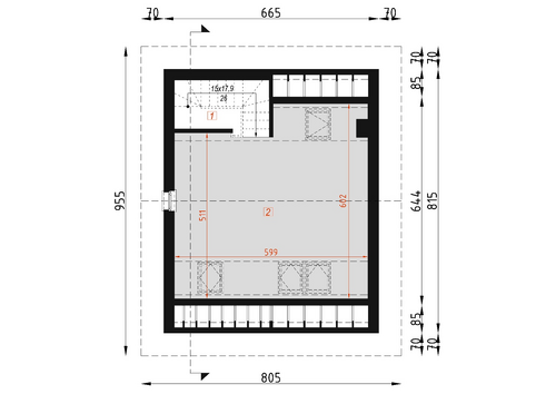
Rzuty
Parter
Poddasze
2
poddasze do adaptacji
26.94

Zobacz inne, podobne projekty