Informujemy, iż nasz sklep internetowy wykorzystuje technologię plików cookies a jednocześnie nie zbiera w sposób automatyczny żadnych informacji, z wyjątkiem informacji zawartych w tych plikach (tzw. „ciasteczkach”).

E-101

  • Tylko online

Dane techniczne

powierzchnia
144.19 m²
wysokość
8.8 m
kąt dachu
40 °
szerokość działki
21.51 m
Liczba pokoi
4
Powierzchnia zabudowy
125.78
kondygnacje
parterowe
garaż
z garażem 1 st.
dach
dach dwuspadowy
piwnica
bez piwnicy
kubatura
499.9 m³
dostępne odbicie lustrzane
Nie
Pow. użytkowa
144.19 m²
długość działki
18.4 m
Powierzchnia dachu
145 m²

Opis projektu

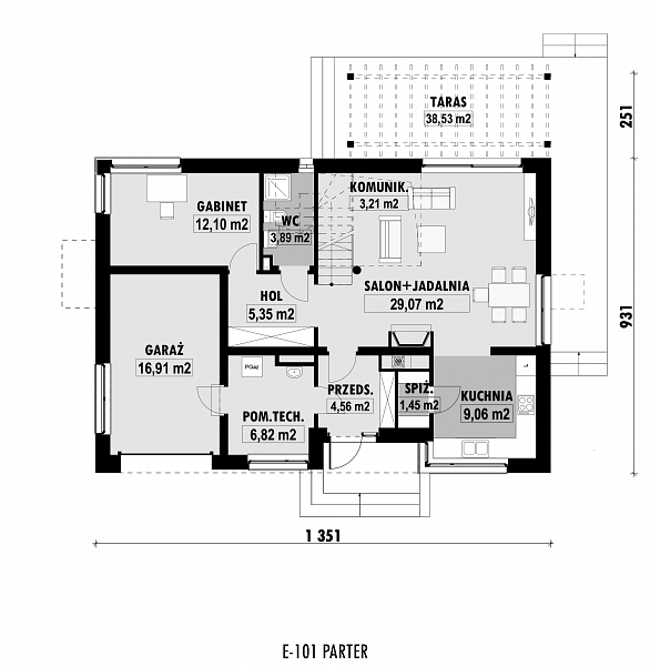
E-101 to dom o nowoczesnym wyglądzie i ładnych proporcjach. Prosta bryła budynku została urozmaicona drewnem i klinkierem oraz pergolą od strony tarasu. Na uwagę zasługuje częściowo otwarta przestrzeń nad salonem, dzięki której wnętrze domu jest przestronne i nowoczesne. Może to być np. doskonałe miejsce do pracy. Na parterze zaplanowano duży salon z jadalnią. W centralnym miejscu umieszczono kominek. Z jadalnią graniczy półotwarta kuchnia ze spiżarnią. Na tym poziomie zaprojektowano także dodatkowy pokój z funkcjonalną łazienką. Na poddaszu znajdują się trzy sypialnie, w tym jedna główna z garderobą i łazienką. Jest tutaj również obszerna łazienka dla całej rodziny. Ścianka kolankowa ma wysokość ok. 1m.

Rzuty

Rzut 1
Rzut 2

Elewacje

Sytuacja

O autorze projektu E-101

5 290 zł

Tylko u nas możesz negocjować cenę!
Skorzystaj z tej możliwości.

Lustrzane odbicie: niedostępne.

Masz dodatkowe pytania?
Zadzwoń lub zamów rozmowę.

Zamów rozmowę

Pomożemy Ci dopasować do twoich potrzeb mymarzony projekt, wpisz swój numer telefonu nasz konsultant oddzwoni.

Negocjuj cenę projektu E-101

Zapytaj pytanie o projekt E-101

Oceny i komentarze

Napisz swoją opinię