Informujemy, iż nasz sklep internetowy wykorzystuje technologię plików cookies a jednocześnie nie zbiera w sposób automatyczny żadnych informacji, z wyjątkiem informacji zawartych w tych plikach (tzw. „ciasteczkach”).

E-102

  • Tylko online

Dane techniczne

powierzchnia
143.71 m²
wysokość
8.8 m
kąt dachu
40 °
szerokość działki
21.3 m
Liczba pokoi
4
Powierzchnia zabudowy
148.13
kondygnacje
parterowe
garaż
z garażem 2 st.
dach
dach dwuspadowy
piwnica
bez piwnicy
kubatura
541.27 m³
dostępne odbicie lustrzane
Nie
Pow. użytkowa
143.71 m²
długość działki
21.1 m
Powierzchnia dachu
140 m²

Opis projektu

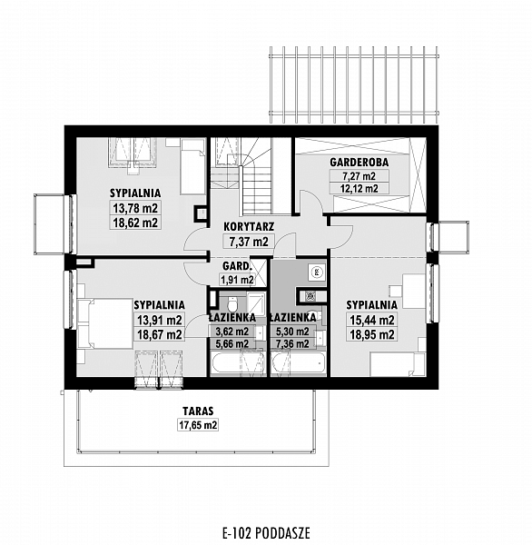
Projekt E-102 jest wersją E-101 z dwustanowiskowym garażem. Bryła E-102 spodoba się osobom ceniącym prostotę i niegustującym w wykuszach i lukarnach. Atrakcją domu jest duży taras na poddaszu - przy głównej sypialni. Elewacja domu została urozmaicona elementami wykończenia z szarego klinkieru oraz drewna. Od strony ogrodu zaprojektowano pergolę. Na parterze zaplanowano przestronny salon z jadalnią oraz dużą półotwartą kuchnię i dodatkowy pokój z niewielką łazienką. Na poddaszu (ze ściankami kolankowymi wys. 1m) znajdują się trzy sypialnie, w tym jedna główna z garderobą i łazienką oraz wyjściem na duży taras. Zaplanowano też oddzielną garderobę i łazienkę dla całej rodziny.

Rzuty

Rzut 1
Rzut 2

Elewacje

Sytuacja

O autorze projektu E-102

5 490 zł

Tylko u nas możesz negocjować cenę!
Skorzystaj z tej możliwości.

Lustrzane odbicie: niedostępne.

Masz dodatkowe pytania?
Zadzwoń lub zamów rozmowę.

Zamów rozmowę

Pomożemy Ci dopasować do twoich potrzeb mymarzony projekt, wpisz swój numer telefonu nasz konsultant oddzwoni.

Negocjuj cenę projektu E-102

Zapytaj pytanie o projekt E-102

Oceny i komentarze

Napisz swoją opinię