- Tylko online
Masz pytania? Chciałbyś negocjować cenę
Zadzwoń! 577 575 011
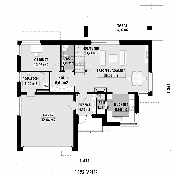
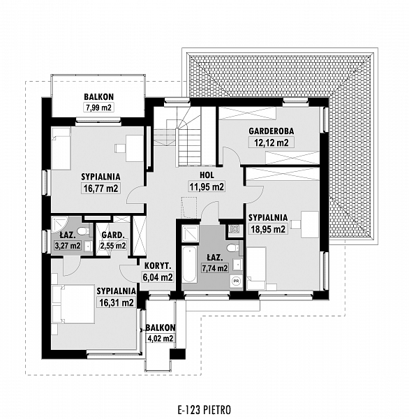
E-123 to nieco powiększona wersja projektu E-122, z dodatkową z łazienką i garderobą przy sypialni na piętrze, kosztem tarasu nad garażem. Na parterze zaplanowano przestronny salon z jadalnią. W centralnym miejscu umieszczono kominek. Z jadalnią graniczy półotwarta kuchnia ze spiżarnią. Na parterze zaplanowano również dodatkowy pokój z niewielką łazienką z prysznicem. Na piętrze znajdują się trzy sypialnie, jedna z łazienką i garderobą oraz duża garderoba i łazienka dla całej rodziny.
