- Tylko online
Masz pytania? Chciałbyś negocjować cenę
Zadzwoń! 577 575 011
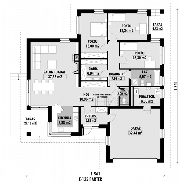
Projekt domu na działkę z wjazdem od południa. Atutem domu jest bardzo dobrze doświetlony salon i jadalnia, a także taras - zlokalizowane od południa. Na parterze domu znajdują się trzy sypialnie (w tym dwie z możliwością wyjścia na mały taras), WC, duża łazienka z prysznicem i wanną, oraz garderoba. Układ schodów pozwala na łatwą adaptację poddasza, nawet po zakończeniu budowy. Na poddaszu podano powierzchnię netto poddasza, tj. po obrysie ścian, możliwą do zaadaptowania.
