- Tylko online
Masz pytania? Chciałbyś negocjować cenę
Zadzwoń! 577 575 011
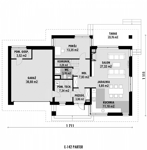
Projekt domu z poddaszem o kącie nachylenia połaci 35 stopni, z salonem połączonym z dużą kuchnią z jadalnią. Dodatkowy pokój na parterze można wykorzystać do pracy lub jako sypialnię. Na poddaszu zostały zlokalizowane trzy sypialnie, w tym jedna z dużą garderobą i łazienką, oraz duża wspólna łazienka.
