Informujemy, iż nasz sklep internetowy wykorzystuje technologię plików cookies a jednocześnie nie zbiera w sposób automatyczny żadnych informacji, z wyjątkiem informacji zawartych w tych plikach (tzw. „ciasteczkach”).

E-150

  • Tylko online

Dane techniczne

powierzchnia
199.34 m²
wysokość
9.38 m
kąt dachu
25 °
szerokość działki
23.01 m
Liczba pokoi
4
Powierzchnia zabudowy
179.03
kondygnacje
parterowe
garaż
z garażem 2 st.
dach
dach czterospadowy
piwnica
bez piwnicy
kubatura
684.41 m³
dostępne odbicie lustrzane
Nie
Pow. użytkowa
199.34 m²
długość działki
23.11 m
Powierzchnia dachu
210 m²

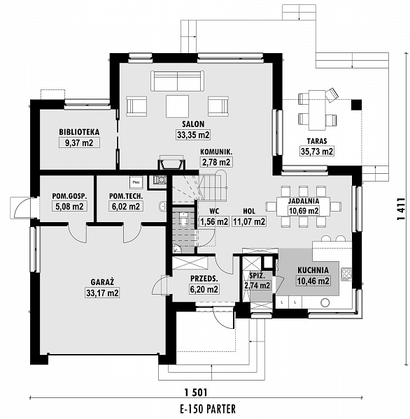
Opis projektu

To zmniejszona wersja projektu E-148. Dom o charakterze rezydencjonalnym wykończony został  eleganckimi materiałami. Przestrzeń wewnątrz domu tworzy duży pokój dzienny z oknami wychodzącymi na ogród i jadalnia połączona z kuchnią. Przy kuchni umiejscowiono małą spiżarkę. Dużym atutem domu jest aneks biblioteczny znajdujący się w sąsiedztwie salonu. Na piętrze znajdują się 3 sypialnie, każda z dostępem do balkonu, a główna posiada dodatkowo łazienkę i garderobę.

Rzuty

Rzut 1
Rzut 2

Elewacje

Sytuacja

O autorze projektu E-150

7 390 zł

Tylko u nas możesz negocjować cenę!
Skorzystaj z tej możliwości.

Lustrzane odbicie: niedostępne.

Masz dodatkowe pytania?
Zadzwoń lub zamów rozmowę.

Zamów rozmowę

Pomożemy Ci dopasować do twoich potrzeb mymarzony projekt, wpisz swój numer telefonu nasz konsultant oddzwoni.

Negocjuj cenę projektu E-150

Zapytaj pytanie o projekt E-150

Oceny i komentarze

Napisz swoją opinię