Informujemy, iż nasz sklep internetowy wykorzystuje technologię plików cookies a jednocześnie nie zbiera w sposób automatyczny żadnych informacji, z wyjątkiem informacji zawartych w tych plikach (tzw. „ciasteczkach”).

E-201

  • Tylko online

Dane techniczne

powierzchnia
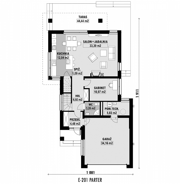
162.39 m²
wysokość
8.5 m
kąt dachu
22 °
szerokość działki
17.81 m
Liczba pokoi
4
Powierzchnia zabudowy
161.28
kondygnacje
parterowe
garaż
z garażem 2 st.
dach
dach czterospadowy
piwnica
bez piwnicy
kubatura
546.38 m³
dostępne odbicie lustrzane
Nie
Pow. użytkowa
162.39 m²
długość działki
28.11 m
Powierzchnia dachu
170 m²

Opis projektu

Rzuty

Rzut 1
Rzut 2

Elewacje

Sytuacja

O autorze projektu E-201

6 590 zł

Tylko u nas możesz negocjować cenę!
Skorzystaj z tej możliwości.

Lustrzane odbicie: niedostępne.

Masz dodatkowe pytania?
Zadzwoń lub zamów rozmowę.

Zamów rozmowę

Pomożemy Ci dopasować do twoich potrzeb mymarzony projekt, wpisz swój numer telefonu nasz konsultant oddzwoni.

Negocjuj cenę projektu E-201

Zapytaj pytanie o projekt E-201

Oceny i komentarze

Napisz swoją opinię