Informujemy, iż nasz sklep internetowy wykorzystuje technologię plików cookies a jednocześnie nie zbiera w sposób automatyczny żadnych informacji, z wyjątkiem informacji zawartych w tych plikach (tzw. „ciasteczkach”).

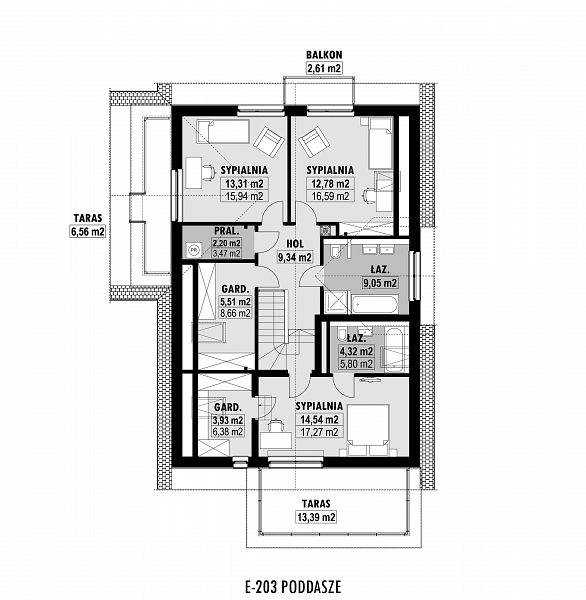
E-203

  • Tylko online

Dane techniczne

powierzchnia
161.9 m²
wysokość
8.54 m
kąt dachu
40 °
szerokość działki
19.01 m
Liczba pokoi
4
Powierzchnia zabudowy
161.53
kondygnacje
parterowe
garaż
z garażem 2 st.
dach
dach dwuspadowy
piwnica
bez piwnicy
kubatura
583.95 m³
dostępne odbicie lustrzane
Nie
Pow. użytkowa
161.9 m²
długość działki
25.81 m
Powierzchnia dachu
230 m²

Opis projektu

Rzuty

Rzut 1
Rzut 2

Elewacje

Sytuacja

O autorze projektu E-203

5 690 zł

Tylko u nas możesz negocjować cenę!
Skorzystaj z tej możliwości.

Lustrzane odbicie: niedostępne.

Masz dodatkowe pytania?
Zadzwoń lub zamów rozmowę.

Zamów rozmowę

Pomożemy Ci dopasować do twoich potrzeb mymarzony projekt, wpisz swój numer telefonu nasz konsultant oddzwoni.

Negocjuj cenę projektu E-203

Zapytaj pytanie o projekt E-203

Oceny i komentarze

2019-05-04

ładnie, estetycznie, co prawda taki duży garaz na dwa auta nam nie potrzebny, ale w sumie może kiedyś dokupimy drugie auto i nie będziemy musieli już się martwić o dobudowywanie kolejnego wolnostojącego garażu na samochód.generalnie taki domek w takiej kolorystyce i z takim układem pomieszczeń chyba najbardziej robi na mnie wrażenie z tych wszystkich,suepr projekt E-203!

Napisz swoją opinię