Informujemy, iż nasz sklep internetowy wykorzystuje technologię plików cookies a jednocześnie nie zbiera w sposób automatyczny żadnych informacji, z wyjątkiem informacji zawartych w tych plikach (tzw. „ciasteczkach”).

E-220

  • Tylko online

Dane techniczne

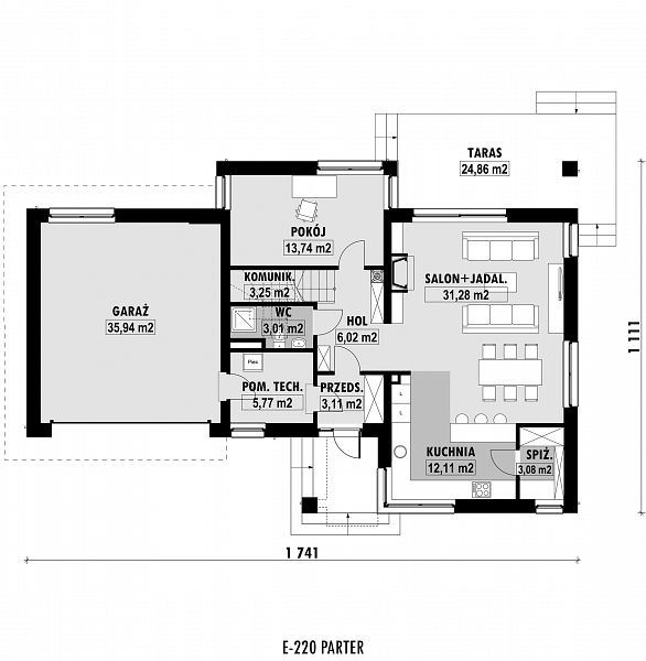
powierzchnia
158.9 m²
wysokość
8.97 m
kąt dachu
25 °
szerokość działki
24.41 m
Liczba pokoi
4
Powierzchnia zabudowy
163.66
kondygnacje
parterowe
garaż
z garażem 2 st.
dach
dach czterospadowy
piwnica
bez piwnicy
kubatura
578.38 m³
dostępne odbicie lustrzane
Nie
Pow. użytkowa
158.9 m²
długość działki
20.11 m
Powierzchnia dachu
210 m²

Opis projektu

Rzuty

Rzut 1
Rzut 2

Elewacje

Sytuacja

O autorze projektu E-220

6 690 zł

Tylko u nas możesz negocjować cenę!
Skorzystaj z tej możliwości.

Lustrzane odbicie: niedostępne.

Masz dodatkowe pytania?
Zadzwoń lub zamów rozmowę.

Zamów rozmowę

Pomożemy Ci dopasować do twoich potrzeb mymarzony projekt, wpisz swój numer telefonu nasz konsultant oddzwoni.

Negocjuj cenę projektu E-220

Zapytaj pytanie o projekt E-220

Oceny i komentarze

Napisz swoją opinię