- Tylko online
Masz pytania? Chciałbyś negocjować cenę
Zadzwoń! 577 575 011
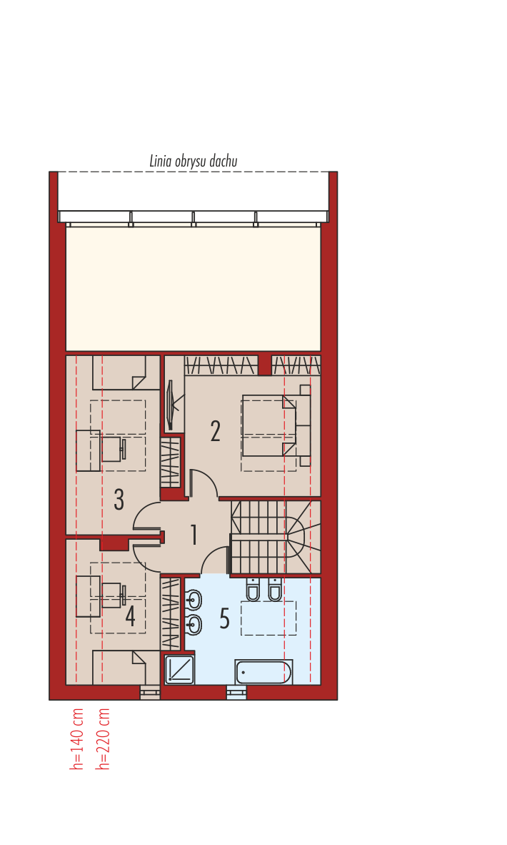
Projekty z serii EX soft wyposażono w standardowy zestaw instalacji: wentylację grawitacyjną i piec gazowy. Charakterystyka: dom parterowy z poddaszem użytkowym, niepodpiwniczonyPrzeznaczenie: dom dla 4-osobowej rodzinyTechnologia i konstrukcja:Fundamenty: ławy, bloczki betonowe 24 cm, ocieplenie styropian 15 cmŚciany zewnętrzne: murowane, dwuwarstwowe, beton komórkowy firmy Solbet 24 cm, ocieplenie 20 cmŚciany wewnętrzne: murowane, cegła wapienno-piaskowa, ściany nośne firmy Solbet 24 cm, ścianki działowe 12 cmPodłoga na gruncie: płyta betonowa, ocieplenie styropian 15 cmStrop i stropodach nad garażem: strop międzypiętrowy gęstożebrowy TerivaDach: konstrukcja drewniana, ocieplenie wełna mineralna 30 cm, blacha na rąbek stojący Classic firmy RuukkiRozwiązania instalacyjne: Ogrzewanie: kocioł gazowy, rozprowadzenie ciepła: grzejniki Wentylacja: grawitacyjna Wykończenie:Elewacja: tynk cienkowarstwowy mineralny i okładzina drewnianaStolarka: drewniana, PCV lub aluminiowa, drzwi wejściowe firmy HörmannOkna połaciowe: rozwiązania technologiczne firmy FakroInne: zewnętrzne drewniane żaluzje przesuwneOtoczenie: system tarasowy ProDeck - deska kompozytowa Terra w kolorze złoty dąbDostępne wersje:- Odbicie lustrzane Istnieje możliwość:- podpiwniczenia budynku Atuty projektu okiem architekta:- Zwarta bryła sprzyjająca energooszczędności- Bardzo dobre parametry cieplne- Nowoczesna interpretacja klasycznej bryły domu- Zjawiskowa kompozycja elewacji – połączenie drewnianej okładziny i dużych przeszkleń- Kuchnia z praktyczną spiżarnią- Reprezentacyjny salon z kominkiem oferujący wiele możliwości aranżacji- Wygodna strefa nocna zaplanowana na poddaszu- Funkcjonalne szafy wnękowe- Duże przeszklenia od strony ogrodu oraz w jadalni z widokiem na ogród- Żaluzje zewnętrzne przesuwne jako osłona przed przegrzewaniem w upalne dni- Wygodne zadaszenie nad wejściem do budynku jako osłona przed wiatrem i śniegiem- Duże pomieszczenie kotłowni pozwala na zastosowanie dowolnego źródła ogrzewania
