- Tylko online
Masz pytania? Chciałbyś negocjować cenę
Zadzwoń! 577 575 011
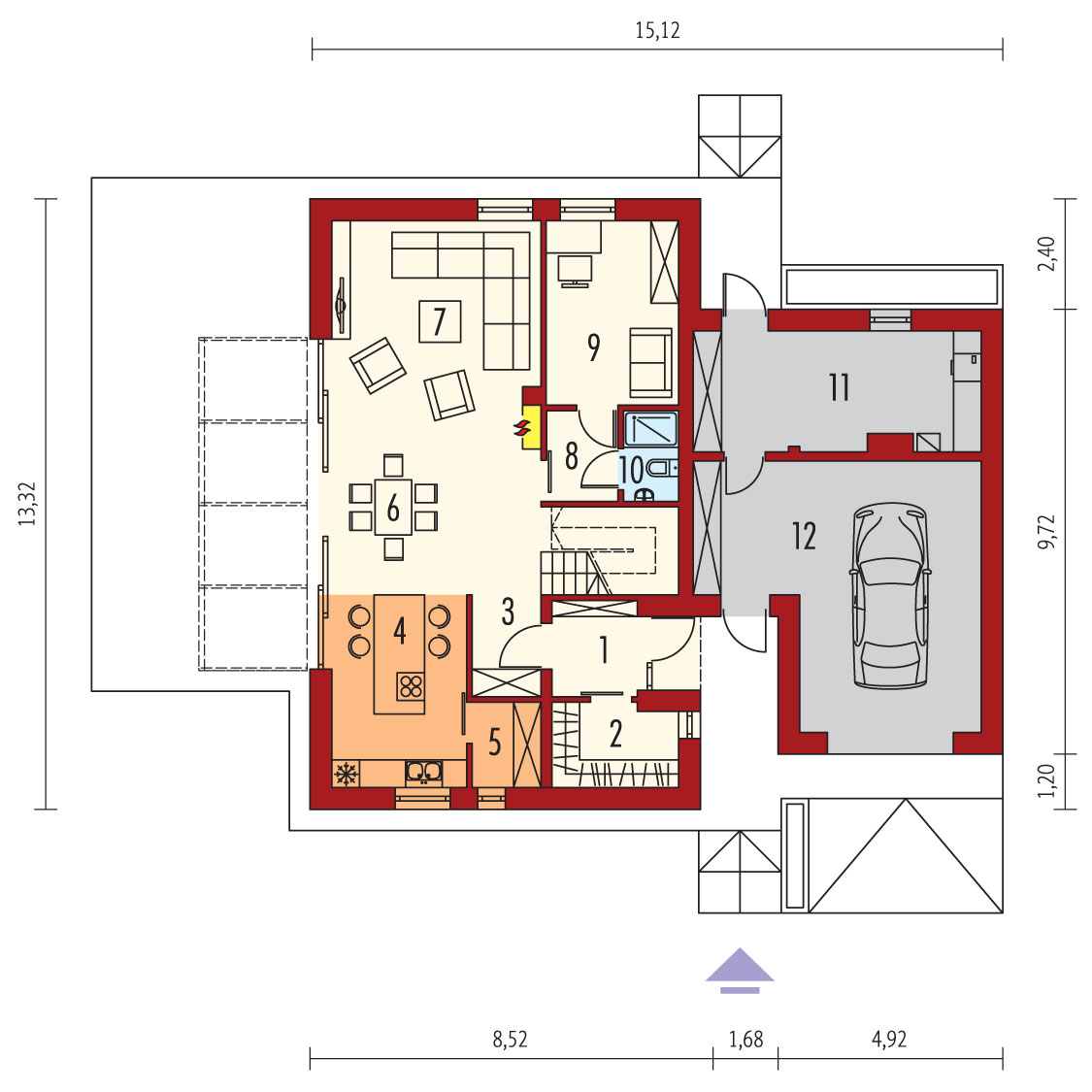
Charakterystyka: Dom parterowy z poddaszem użytkowym, niepodpiwniczony, z garażem jednostanowiskowymPrzeznaczenie: Dom dla 3-5-osobowej rodziny Technologia i konstrukcja:Ściany zewnętrzne: murowane, dwuwarstwowe, beton komórkowy firmy Solbet 24 cm, ocieplenie wełna mineralna typ Fasoterm 35 i Super-Vent firmy Isover gr. 20 cmŚciany wewnętrzne: nośne i działowe murowane, beton komórkowy firmy Solbet 24 cm i 12 cmStrop: międzypiętrowy gęstożebrowy TerivaDach: konstrukcja drewniana, ocieplenie wełna mineralna Isover 30 cm, blacha na rąbek stojący w kolorze grafitowymSchody: schody wewnętrzne drewnianeInne: pergola stalowa lub drewniana z roletami, dom spełnia standardy Grupy Saint-Gobain; Marka Isover, Rigips i Weber zapewniają najwyższą jakość wbudowanych produktów: systemy ociepleń, okładziny ścienne i sufitowe, paroizolacje, systemy podłogowe, zaprawy, kleje, hydroizolacje Rozwiązania instalacyjne energooszczędne:Ogrzewanie: kocioł gazowy kondensacyjny firmy Viessmann, rozprowadzenie ciepła: grzejniki firmy PurmoWentylacja: wentylacja mechaniczna nawiewno-wywiewna z odzyskiem ciepła firmy ViessmannOZE: kolektory słoneczne firmy ViessmannDodatkowo: stacja uzdatniania wody firmy Viessmann Wykończenie:Elewacje: tynk cienkowarstwowy mineralny w kolorze grafitowym Weber, okładzina - system elewacji wentylowanej: deski włóknocementowe Cedral w kolorze beżowo-żółtym np. C11 lub kremowo-białym np. C07, okładzina z blachy stalowej w kolorze pokrycia dachuStolarka: drewniana, PVC lub aluminiowa, drzwi tarasowe podnoszono-przesuwne typu HS aluminiowo-drewniane, rolety zewnętrzne w systemie QuadBox firmy BeClever, drzwi wejściowe firmy HörmannOkna połaciowe: rozwiązania technologiczne i wyłaz dachowy firmy VeluxOtoczenie: kostka betonowa i płyty tarasowe firmy Libet, system tarasowy ProDeck - deska kompozytowa Terra w kolorze orzechDostępne wersje w serii EX 16: - EX 16 ENERGO PLUS reco – wersja podstawowa, instalacje energooszczędne firmy Vaillant: pompa ciepła, wentylacja mechaniczna z rekuperacją, system fotowoltaiczny oraz ogrzewanie podłogowe firmy Purmo - EX 16 SOFT – wersja ze standardowymi instalacjami: kocioł gazowy, wentylacja grawitacyjna - EX 16 G1 Multi-Comfort – wersja ze standardowymi instalacjami: kocioł gazowy kondensacyjny, wentylacja grawitacyjna, rozwiązania technologiczno-materiałowe Grupy Saint-Gobain: Isover, Weber, Rigips, garaż jednostanowiskowy, inne wykończenie elewacji - EX 16 II ENERGO PLUS – podobny układ funkcjonalny, inne wykończenie elewacji, energooszczędne instalacje: pompa ciepła, ogrzewanie podłogowe, wentylacja mechaniczna z rekuperacją, panele fotowoltaiczne - odbicie lustrzane do każdej wersji Wszystkie wersje domów dostępne w dwóch standardach/wariantach instalacyjnych: - ENERGO: kocioł gazowy kondensacyjny, grzejniki, wentylacja grawitacyjna, OZE: kolektory słoneczne - ENERGO PLUS: pompa ciepła, ogrzewanie podłogowe, wentylacja mechaniczna, OZE: panele fotowoltaiczne Istnieją techniczne możliwości wykonania zmian: - podpiwniczenia budynku - wykonania budynku w technologii szkieletowej - dokonania zmian funkcjonalnych wg indywidualnych wymagań
nigdy przyznaje nie byłam fanką takich połaczeń az tak wyrazistych typu drewno na jednej części kondygnacji i na przykład szarości ciemne igrafity na drugiej, za bardzo mi się to odcinało, ale w tym przypadku to się broni, EX 16 G1 MULTI-COMFORT bardzo mi się podoba!
nigdy przyznaje nie byłam fanką takich połaczeń az tak wyrazistych typu drewno na jednej części kondygnacji i na przykład szarości ciemne igrafity na drugiej, za bardzo mi się to odcinało, ale w tym przypadku to się broni, EX 16 G1 MULTI-COMFORT bardzo mi się podoba!
ja się zastanawiać czy takie belkowane zadaszenie nad tarasem jak w domu EX 16 G1 MULTI-COMFORT cos w ogóle dają? Bo tak cszczeze to sa super designerskie i bardzo mi się podobają, ale deszcz raczej przepuszczają, chyba że nad ty jest rozłozona jakas takagruba przezroczyta folia, no sama nie wiem…albo pawilon ogrodowy pod tym zadaszeniem….co poleciacie? Ktoś tez miał taki problem z takimi zadaszeniami?
ładne wykończenia, chociaż nietradycyjne – raczej zwykle robi się tynk, no ale Archido potrafi zaskoczyć, a już myślałam, że w kwestii projektów gotowych widziałam chyba wszytsko, ale jednak nie ;-)
Nono… robi wrażenie. Bryła jest prosta, ale efekt końcowy… Genialna elewacja, nie spodziewałem się, że drewno może tak prezentować się w nowoczesnym wydaniu. Idealnie dopasowany taras. Zależy mi na fajnej przestrzeni na zewnątrz i połączeniu z salonem.
Ten konkretny gotowy projekt domu wygląda z zewnątrz bardzo industrialnie, ale jednak powierzchnia wewnątrz jest bardzo domowa, co w sumie przekonało mnie bardzo do tego projektu. Wydaje mi się też, że fajnym rozwiązaniem będzie to, że oszczędzona jest przestrzeń poprzez to, że dodano przesuwane drzwi tarasowe. Super.
Na Archido jest z czego wybierac ale ciagle brakuje mi mniejszych domów ale bardzo nowoczesnych. Nie potrzebujemy jakiegos specjalnego metrażu, bardziej zalezy nam na designie. Ten mniej spelnia nasze oczekiwania, chociaz mógłby być nieco mniejszy. Nie planujemy az tylu gosci :)

super elewacja
drewno i ten szary tytnk wizualnie odcinają os siebie parter od piętra, a to cąłkiem fajnie wygląda. Projekt EX 16 G1 MULTI-COMFORT dzięki temu wyg lada jeszcze nowocześniej. Super! Idelanie to wyglda. Pozdrawiam! ;-)