- Tylko online
Masz pytania? Chciałbyś negocjować cenę
Zadzwoń! 577 575 011
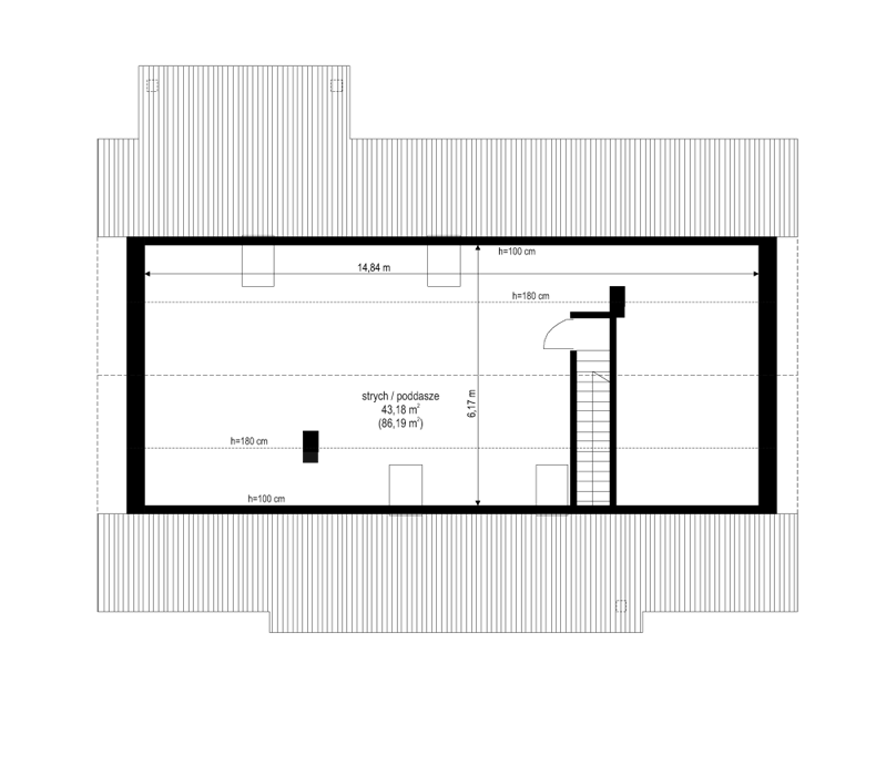
Projekt domu Bursztyn 2 jest to nowy wariant bardzo popularnego projektu Bursztyn, o podobnym kształcie, ale ze zmienioną funkcją pomieszczeń, oraz stropem betonowym nad parterem, podniesionym dachem, krokwiową więźbą dachową i strychem do wykorzystania na poddasze użytkowe. Domek ma zwartą prostokątną bryłę skrytą pod jednym wspólnym dachem dla części mieszkalnej i dla garażu (co obniża koszt dachu). Na poziomie parteru zaprojektowano wszystko czego 4- 5-osobowa rodzina może potrzebować. Mamy więc pokój dzienny z wyjściem na zadaszony taras, narożnym kominkiem i ściana tv, bardzo ładną i ustawną kuchnię, oddzielny wygodny hol, trzy sypialnie, dwie łazienki. Do tego wchodząc do domu trafiamy do bardzo przestronnego przedsionka (z przewidzianymi schodami na strych), a w części gospodarczej domu mamy wygodny garaż i dużą kotłownię z dodatkowym wyjściem na ogród. Dom ma dodatkową przestrzeń w tych miejscach, w których architekci często skąpią powierzchni, jak pełnowymiarowa kotłownia, duży przedsionek czy hol, który nie jest kiczowatym korytarzem, ale po prostu częścią salonu. Do domu wchodzimy przez narożny podcień. Do ogrodu z kolei dostajemy się przez duży zadaszony taras dostępny z salonu. Nad parterem znajduje się obszerny strych, który może być zaadaptowany na poddasze użytkowe. Zwarta bryła domu, bardzo dobre ocieplenia zwiększają energooszczędność domu. Łatwo dostosować budynek do standardu NF40. Prosta konstrukcja ułatwi budowę. Dzięki niedużej powierzchni dom może być zakwalifikowany do programu MDM. Zapraszamy do zapoznania się z pełną ofertą pracowni MG Projekt: projekt domu Bursztyn oraz projekt domu Szpak czyli wersja Bursztyna bez garażu.
