- Tylko online
Masz pytania? Chciałbyś negocjować cenę
Zadzwoń! 577 575 011
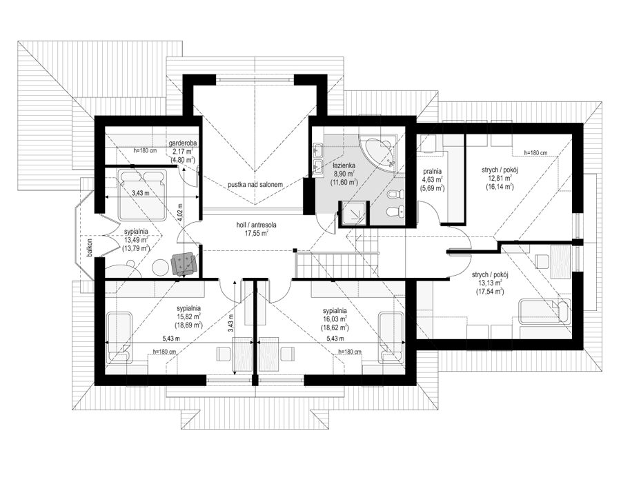
Projekt domu Rubin to przestronny dom dla 4- 6-osobowej rodziny, o nietuzinkowej architekturze i ciekawym wnętrzu. Projekt posiada nietypowe rozwiązania, jak duże okno w salonie z otwarciem przestrzennym na antresolę na poddaszu, czy narożny zadaszony podcień z tarasem. Te detale dodają projektowi oryginalnego wyrazu. Wnętrze domu jest przemyślane i jednocześnie maksymalnie funkcjonalne. Na parterze oprócz dużej otwartej przestrzeni dziennej zaprojektowano dodatkowy pokój, natomiast na poddaszu zmieszczono aż pięć pokoi i dużą łazienkę. Pracownia MGProjekt posiada też projekt domu Rubin w odbiciu lustrzanym i inne jego wersje: podstawowy projekt domu Rubin, projekt domu Rubin 2 oraz projekt domu Rubin 3.
Dobrze, że ktoś wpadł na pomysł zrobienia podcienia. Można się schować jak pada deszcz. Dobrze przemyślane są dwa wejście osobno do garażu i do pomieszczenia gospodarczego. Podoba mi się połączenie kolorystyczne. A jaka cena wybudowania ?ktoś z archido wie?

odpowiedż na pytanie o cene
Faktycznie, jak garaz to tylko z małym zadaszeniem i z dodatkowym pomieszcezniem gospodarczym, bo w innym przypadku szybko zaczyna robić się bałagan, a tak rzeczy są uprzadkowane. Co do ceny o którą pytasz – 55 tysięcy, tak jest napisane w zakładce na stronie. Oczywiście to jest cena pod klucz, czyli na gotowca już.