- Tylko online
Masz pytania? Chciałbyś negocjować cenę
Zadzwoń! 577 575 011
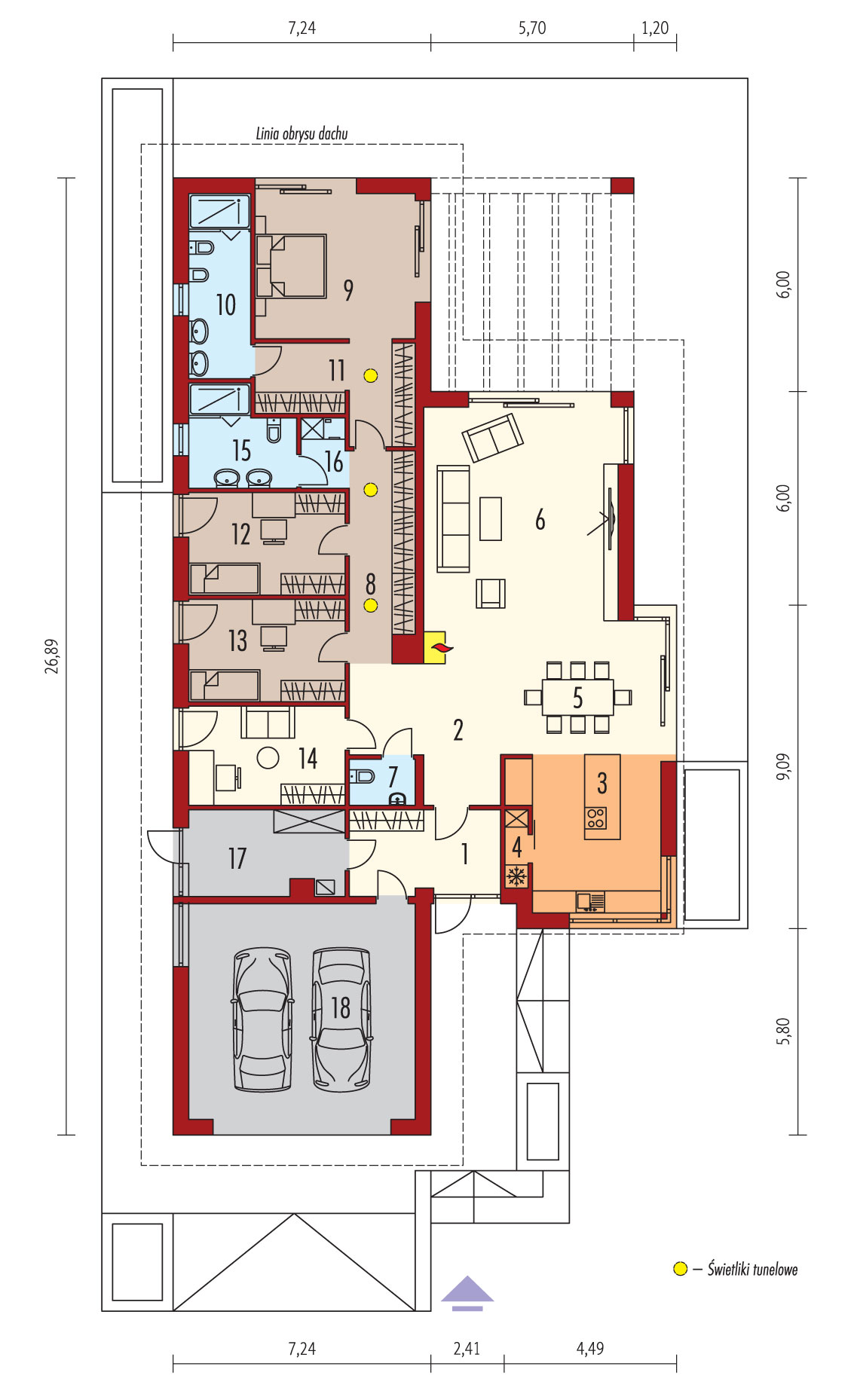
Charakterystyka: Dom parterowy, niepodpiwniczony, z garażem dwustanowiskowymPrzeznaczenie: Dom dla 3-5-osobowej rodziny Technologia i konstrukcja:Ściany zewnętrzne: murowane, dwuwarstwowe, beton komórkowy firmy Solbet 24 cm, ocieplenie wełna mineralna Isover 20 cmŚciany wewnętrzne: nośne i działowe murowane, beton komórkowy firmy Solbet 24 cm i 12 cmStrop: gęstożebrowy Teriva, ocieplenie wełna mineralna Isover 30 cmDach: konstrukcja drewniana, dachówka ceramiczna płaska Bergamo firmy Röben, więźba dachowa dostępna również w systemie prefabrykacji drewnianej Rozwiązania instalacyjne:Ogrzewanie: kocioł gazowy kondensacyjny firmy Viessmann, rozprowadzenie ciepła: grzejniki firmy PurmoWentylacja: grawitacyjna OZE: kolektory słoneczneWykończenie:Elewacje: tynk cienkowarstwowy mineralny w kolorze białym TO-PA001 z palety firmy Termo Organika, okładzina drewniana, panele ROCKPANEL STONES w kolorze szarymStolarka: aluminiowo-drewniana, świetliki tunelowe Velux Pobierz ekspercki poradnik VELUX i dowiedz się jak wybrać okna dachowe, drzwi wejściowe i brama garażowa firmy HörmannOtoczenie: kostka betonowa i płyty tarasowe firmy Libet, system tarasowy ProDeck - deska kompozytowa Terra w kolorze orzech Wersje - zapytaj o dostępność:- Karen - bez garażu lub z garażem jednostanowiskowym- Karen ENERGO PLUS - wersja z instalacjami energooszczędnymi: pompa ciepła, ogrzewanie podłogowe, wentylacja mechaniczna, panele fotowoltaiczne, różne wersje garaży- odbicie lustrzane do każdej wersjiIstnieje techniczna możliwość:- podpiwniczenia budynku- wykonania budynku w technologii szkieletowejWarianty działek dla wersji domu z garażem jednostanowiskowym i bez garażu:
