- Tylko online
Masz pytania? Chciałbyś negocjować cenę
Zadzwoń! 577 575 011
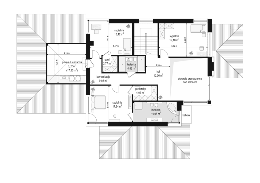
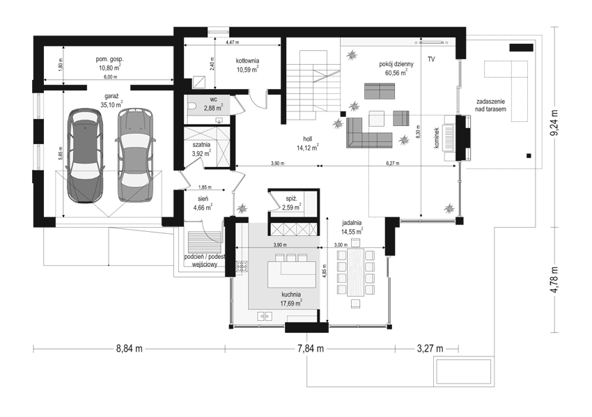
Projekt domu Dom z Widokiem 2 jest wariantową pomniejszoną wersją cieszącego się popularnością projektu Dom z widokiem. Dom został nieco zmniejszony w stosunku do swojego pierwowzoru. Powierzchnia została zmniejszona o niecałe 20%. Podobnie koszty realizacji - również udało się ograniczyć o jedną piątą budżetu. Projekt domu Dom z Widokiem 2 to nowoczesna miejska willa, o dynamicznej ciekawej architekturze, otwarta na ogród, z mnóstwem atrakcyjnych detali i ciekawą bryłą. Dobrze zestawione ze sobą materiały, detale i kolorystyka tworzą niepowtarzalne wrażenie komfortu, wygody i niezależności. Program użytkowy został nieco okrojony w stosunku do bazowego projektu, ale dom nic nie stracił na swojej funkcjonalności. Jego wnętrze nadal jest pełne przestrzeni. Wchodząc do wnętrza domu czujemy luz i rozkoszujemy się niczym nie ograniczonym komfortem. Na parterze zaprojektowano otwartą część dzienną, z salonem z pustką i otwarciem na antresolę na piętrze, z jadalnią, holem z reprezentacyjnymi schodami, oraz dużą kuchnią z wyspą. Wnętrze przedziela prostopadłościan spiżarni i zabudowy kuchennej. Do domu wchodzimy przez otwarty, przeszklony wiatrołap z szatnią. Na parterze dodatkowo mieści się kotłownia, wc, oraz garaż z pomieszczeniem magazynowo-gospodarczym. Na piętrze zaprojektowano trzy sypialnie, z oddzielnym apartamentem rodziców z własną łazienką i garderobą, ogólnodostępną łazienkę, oraz strych - pralnię/suszarnię, lub po prostu magazyn, albo dodatkowy pokój. Dom z Widokiem 2 jest energooszczędny - zastosowano w nim bardzo dobre ocieplenia i instalacje. Łatwo można projekt dostosować do standardu NF40. Budynek ma zwartą bryłę. Jest nieco tańszy w realizacji od projektu bazowego. Zapraszamy do zapoznania się z pełną ofertą pracowni MG Projekt tej serii: Dom z Widokiem, Dom z Widokiem 2, Dom z Widokiem 2C, Dom z Widokiem 3, Dom z Widokiem 3F, Dom z Widokiem 4, Dom z Widokiem 5, Dom z Widokiem 6, Dom z Widokiem 6B, Dom z Widokiem B, Dom z Widokiem E.
Lubie domy z lukarnami i wykuszami. Fajne urozmaicenie nawet jak dom jest maly. Do tego kolorki super. Ale garaż by się przydał. Jest gdzieś na archido wersja z garażem? Tylko koniecznie z takim wykończeniem!

Od razu widać, że projektował ktoś z praktycznym podejściem do tematu. Bardzo dużo miejsca na szafy i co ważne – wszystkie wnękowe! Takie lubię najbardziej, bo praktycznie ich niewidać, a wybór frontów jest duży. To jeden z większych plusów projektu. Nawet jeśli my się nie zdecydujemy, to myślę, że można śmiało polecić taki projekt jak Klif :)