- Tylko online
Masz pytania? Chciałbyś negocjować cenę
Zadzwoń! 577 575 011
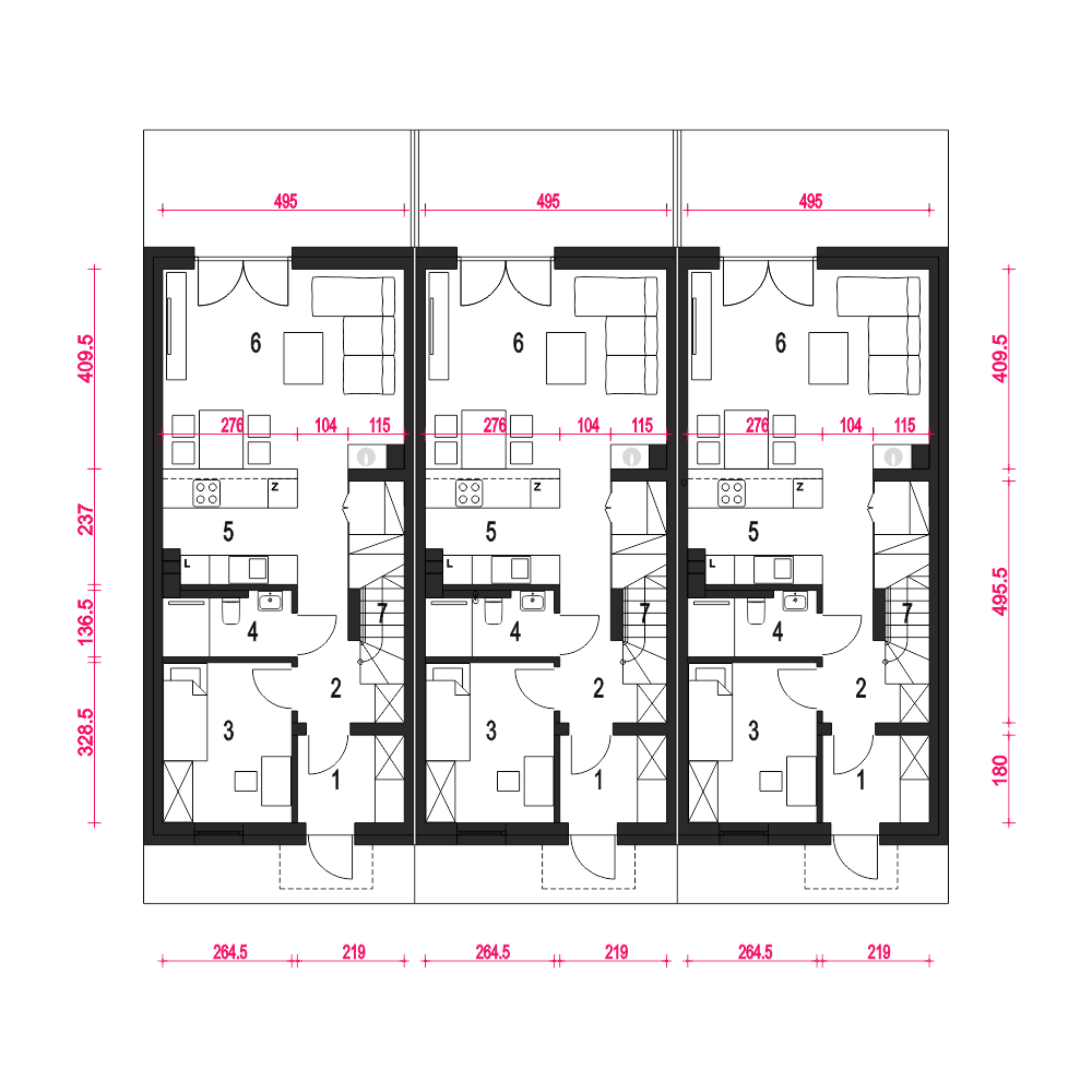
Projekt domu Agawa - atrakcyjny dom piętrowy z płaskim dachem w zabudowie szeregowej. Ten idealny projekt pasuje na bardzo wąskie działki. Prosta i zwarta forma budynku oraz nieduża powierzchnia użytkowa - około 100 m2 - przekładają się na niski koszt budowy i eksploatacji domu. Projekt Agawa przewidziany jest dla 4-5cio osobowej rodziny. To dom o tradycyjnej konstrukcji z pustaków ceramicznych izolowanych styropianem, przykryty płaskim dachem. Funkcja domu obejmuje część ogólnodostępną i prywatną, zgodnie z podziałem na parter i poddasze. W części ogólnodostępnej zaprojektowano część wejściową z wiatrołapem, holem ze schodami z którego dostaniemy się do pokoju, łazienki, kuchni oraz salonu z jadalnią i kominkiem. Część prywatna zlokalizowana jest na poddaszu i obejmuje przedpokój z którego dostaniemy się do 3 sypialni, wspólnej łazienki oraz pomieszczenia pralni z piecem gazowym c.o. Agawa, to projekt energooszczędnego, szeregowego domu dwupiętrowego, bardzo prostego w realizacji i idealnego dla inwestycji deweloperskich.fundamenty: BETONOWE ściany zewnętrzne: POROTHERM+STYROPIAN TERMO ORGANIKA rodzaj stropu: TERIVA I elewacje: TYNK STRUKTURALNY/OKŁ. DREWNOPODOBNA pokrycie dachu: BITUMICZNE
