- Tylko online
Masz pytania? Chciałbyś negocjować cenę
Zadzwoń! 577 575 011
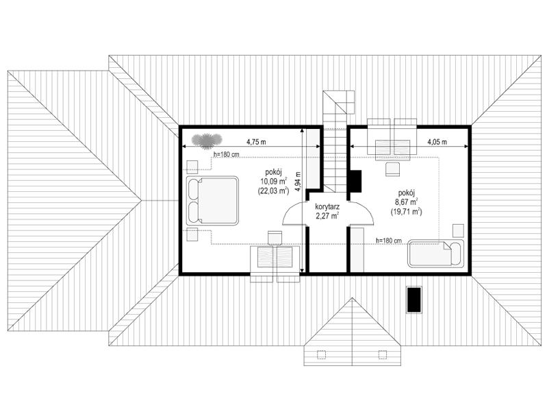
Projekt dom Dominik 2 to wariant projektu Dominik, z dodatkowym garażem z boku i pomieszczeniem gospodarczym. Dom przewidziany jest dla 4- 5-osobowej rozwojowej rodziny. Prócz trzech pokoi sypialnych na parterze przewidziano dodatkowe dwa pokoje na poddaszu. Poddasze w domu Dominik 2 można zagospodarować w drugim etapie, po zamieszkaniu na parterze. Pomieszczenie gospodarcze przy wejściu pełni rolę kotłowni - ewentualnie można przenieść piec do pomieszczenia za garażem. Pracownia posiada też projekt Dominik 2 w odbiciu lustrzanym. Zapraszamy do zapoznania się z pełną ofertą pracowni MG Projekt: projekt domu Dominik.
