- Tylko online
Masz pytania? Chciałbyś negocjować cenę
Zadzwoń! 577 575 011
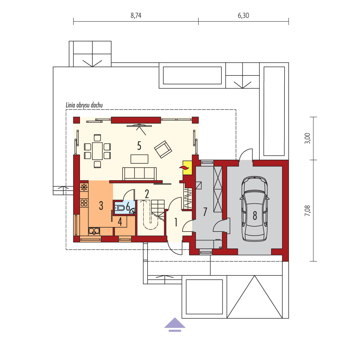
Charakterystyka: Dom parterowy, niepodpiwniczony, z garażem jednostanowiskowym Przeznaczenie: Dom dla 3-4-osobowej rodziny Technologia i konstrukcja: Fundamenty: ławy, bloczki betonowe 24 cm, ocieplenie styropian 15 cmŚciany zewnętrzne: murowane, dwuwarstwowe, beton komórkowy firmy Solbet 24 cm, ocieplenie 20 cmPodłoga na gruncie: płyta betonowa, ocieplenie styropian 15 cmStrop i stropodach nad garażem: strop międzypiętrowy gęstożebrowy Teriva, stropodach pełny: ocieplenie styropian 30 cmDach: konstrukcja drewniana, ocieplenie wełna mineralna 30 cm, dachówka płaska lub inna o podobnych parametrachInne: schody wewnętrzne drewnianeInstalacje: Ogrzewanie: kocioł gazowy, rozprowadzenie ciepła: grzejniki Wentylacja: grawitacyjnaOZE: kolektory słoneczneWykończenie: Elewacje: tynk cienkowarstwowy mineralny, okładzina z płyty HPL z naturalną okleiną drewnianą firmy Prodema i okładzina klinkierowaStolarka: drewniana, PCV lub aluminiowaInne: żaluzja ozdobna drewnianaOkna połaciowe: rozwiązania technologiczne firmy VELUX, wyłaz dachowy VELUXPobierz ekspercki poradnik VELUX i dowiedz się jak wybrać okna dachoweWersje w serii Lars - zapytaj o dostępność: - Lars (wersja A) – wersja podstawowa - Lars (wersja B) – inne wykończenie elewacji, dach bez okapów - Lars (wersja B) ENERGO PLUS reco – instalacje energooszczędne firmy Vaillant: pompa ciepła, wentylacja mechaniczna z rekuperacją, system fotowoltaiczny oraz ogrzewanie podłogowe firmy Purmo- wszystkie wersje o takim samym układzie funkcji oraz z inną propozycją wykończenia elewacji - wszystkie wersje z dwoma wariantami garaży: z garażem jedno- i dwustanowiskowym - odbicie lustrzane do każdej wersji Wszystkie wersje domów możliwe w dwóch standardach/wariantach instalacyjnych: - ENERGO: kocioł gazowy kondensacyjny, grzejniki, wentylacja grawitacyjna, OZE: kolektory słoneczne - ENERGO PLUS: pompa ciepła, ogrzewanie podłogowe, wentylacja mechaniczna, OZE: kolektory słoneczne lub panele fotowoltaiczneIstnieją techniczne możliwości wykonania zmian: - podpiwniczenia budynku - wykonania budynku w technologii szkieletowej - zbliźniaczenia lub wykonania domu dwulokalowego - dokonania zmian funkcjonalnych wg indywidualnych wymagań
