Informujemy, iż nasz sklep internetowy wykorzystuje technologię plików cookies a jednocześnie nie zbiera w sposób automatyczny żadnych informacji, z wyjątkiem informacji zawartych w tych plikach (tzw. „ciasteczkach”).

Makolągwa BL2

Lustrzane odbicie
  • Tylko online

Dane techniczne

powierzchnia
190.2 m²
wysokość
8.5 m
kąt dachu
35 °
szerokość działki
16 m
Liczba pokoi
10
Powierzchnia zabudowy
194.6
kondygnacje
z poddaszem użytkowym
garaż
z garażem 1 st.
dach
dach dwuspadowy
konstrukcja
murowane
zabudowa
domy bliźniacze
piwnica
bez piwnicy
dostępne odbicie lustrzane
Tak
Pow. użytkowa
190.2 m²
długość działki
23.1 m
Liczba łazienek
4
Powierzchnia dachu
199.6 m²

Opis projektu

(Uwaga: projekty typu bliźniak oferujemy jako domy dwulokalowe, projekt można zamówić również w zabudowie bliźniaczej) Poniższy opis dotyczy jednego segmentu: Makolągwa to propozycja niedużego domu dedykowanego 4-5 osobowej rodzinie o prostej bryle i optymalnej funkcji. Dom wyposażony został w częściowo wbudowany w garaż, dostępny jest poprzez wiatrołap z wejściem do kotłowni. dalej mamy kuchnię ze spiżarnią, jadalnię oraz salon z kominkiem. Mamy tu również dodatkowy pokój mogący spełniać funkcję gabinetu lub pokoju gościnnego oraz niewielką łazienkę z natryskiem. Pod schodami wygospodarowano miejsce na szafy. Na piętrze zaprojektowano 3 sypialnie, garderobę oraz łazienkę. Makolągwa to przykład domu dla osób praktycznych z ekonomicznym podejściem do inwestycji.

Rzuty

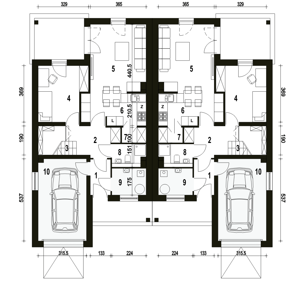
Parter
1. wiatrołap
3,0 m2
2. komunik., garderoba
6,7 m2
3. schody
4,2 m2
4. pokój
10,7 m2
5. salon
16,0 m2
6. kuchnia, jadalnia
8,3 m2
7. spiżarnia
1,5 m2
8. łazienka
3,0 m2
9. pom.techniczne*
3,8 m2
10. garaż*
16,6 m2
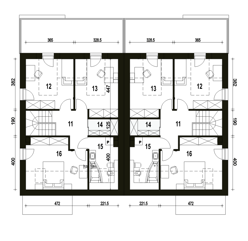
Piętro
11. przedpokój
6,2 (6,2) m2
12. sypialnia
9,2 (13,7) m2
13. sypialnia
9,6 (13,5) m2
14. strych (garderoba)*
2,9 (2,9) m2
15. łazienka
5,7 (6,1) m2
16. sypialnia
11,1 (17,0) m2

Sytuacja

Przekrój

O autorze projektu Makolągwa BL2

8 722 zł

Tylko u nas możesz negocjować cenę!
Skorzystaj z tej możliwości.

Lustrzane odbicie: dostępne.

Masz dodatkowe pytania?
Zadzwoń lub zamów rozmowę.

Zamów rozmowę

Pomożemy Ci dopasować do twoich potrzeb mymarzony projekt, wpisz swój numer telefonu nasz konsultant oddzwoni.

Negocjuj cenę projektu Makolągwa BL2

Wersja projektu:

Zapytaj pytanie o projekt Makolągwa BL2

Wersja projektu:

Oceny i komentarze

Napisz swoją opinię