- Tylko online
Masz pytania? Chciałbyś negocjować cenę
Zadzwoń! 577 575 011
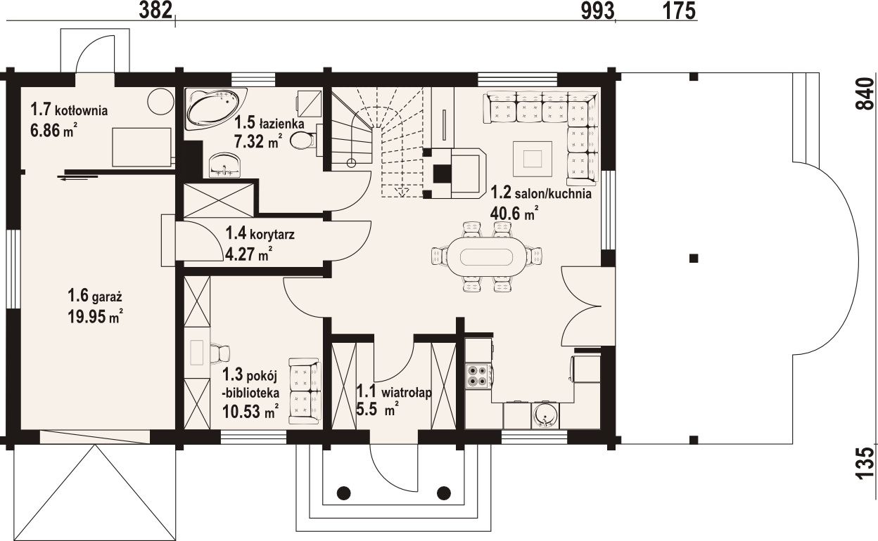
Dom z bali drewnianych. Sześć pokoi, dwie łazienki, aneks kuchenny, wiatrołap, kotłownia, garaż. Duży salon z aneksem kuchennym, kominkiem, schodami na poddasze i wyjściem na taras. Pięć pokoi na poddaszu (w tym trzy z balkonem). Instalacja solarna. Liczne warianty projektu.
