- Tylko online
Masz pytania? Chciałbyś negocjować cenę
Zadzwoń! 577 575 011
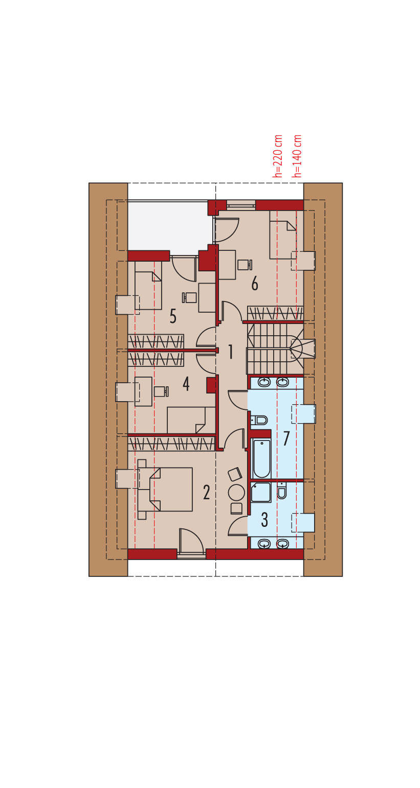
Charakterystyka: Dom parterowy z poddaszem użytkowym, niepodpiwniczony, z garażem jednostanowiskowymPrzeznaczenie: Dom dla 3-5-osobowej rodziny Technologia i konstrukcja:Ściany zewnętrzne: murowane, dwuwarstwowe, beton komórkowy firmy H+H 24 cm, ocieplenie styropian Termo Organika 20 cmŚciany wewnętrzne: nośne i działowe murowane, beton komórkowy firmy H+H 24 cm i 12 cmStrop: międzypiętrowy gęstożebrowy TerivaDach: konstrukcja drewniana, ocieplenie wełna mineralna ISOVER 30 cm, dachówka ceramiczna płaska Bergamo firmy RöbenInne: schody wewnętrzne drewniane Rozwiązania instalacyjne: Ogrzewanie: kocioł gazowy kondensacyjny firmy Viessmann, rozprowadzenie ciepła: grzejniki firmy Purmo Wentylacja: grawitacyjna OZE: kolektory słoneczne firmy Viessmann Dodatkowo: stacja uzdatniania wody firmy ViessmannWykończenie:Elewacje: tynk cienkowarstwowy mineralny w kolorze TO-PA001 z palety firmy Termo Organika, okładzina z płyty HPL z naturalną okleiną drewnianą firmy ProdemaStolarka: drewniana, PVC lub aluminiowa, drzwi tarasowe podnoszono-przesuwne typu HS aluminiowo-drewniane Innoview firmy Fakro, rolety zewnętrzne w systemie CleverBox firmy BeClever, drzwi wejściowe i brama garażowa firmy HörmannOtoczenie: kwadratowa kostka betonowa z serii VERTIGO firmy Libet w kolorze jasno szarym, płyty tarasowe imitujące drewno z serii SUNDECK firmy Libet w kolorach brązowym i szarym, donice z betonu architektonicznego z serii STAMPO firmy Libet w kolorze białym Okna połaciowe: rozwiązania technologiczne i wyłaz dachowy firmy VELUX. Pobierz ekspercki poradnik VELUX i dowiedz się jak wybrać okna dachoweWersje - zapytaj o dostępność:- Riko - bez garażu i z garażem dwustanowiskowym- Riko II – dłuższy budynek, podobny układ funkcji, trzy sypialnie na poddaszu, dwie loggie- Riko III – dłuższy i szerszy budynek, dodatkowy pokój na parterze, trzy sypialnie na poddaszu, dwie loggie, dach bez okapów- Riko IV ENERGO PLUS – dłuższy i szerszy budynek, dodatkowy pokój na parterze, trzy sypialnie na poddaszu, dwie loggie, dach bez okapów, energooszczędne instalacje- dla każdej wersji różne warianty garaży: bez garażu, z garażem jednostanowiskowym, z garażem dwustanowiskowym- każda propozycja z innym wykończeniem elewacji - odbicie lustrzane do każdej wersji Istnieje techniczna możliwość:- podpiwniczenia budynku- wykonania budynku w technologii szkieletowej
