- Tylko online
Masz pytania? Chciałbyś negocjować cenę
Zadzwoń! 577 575 011
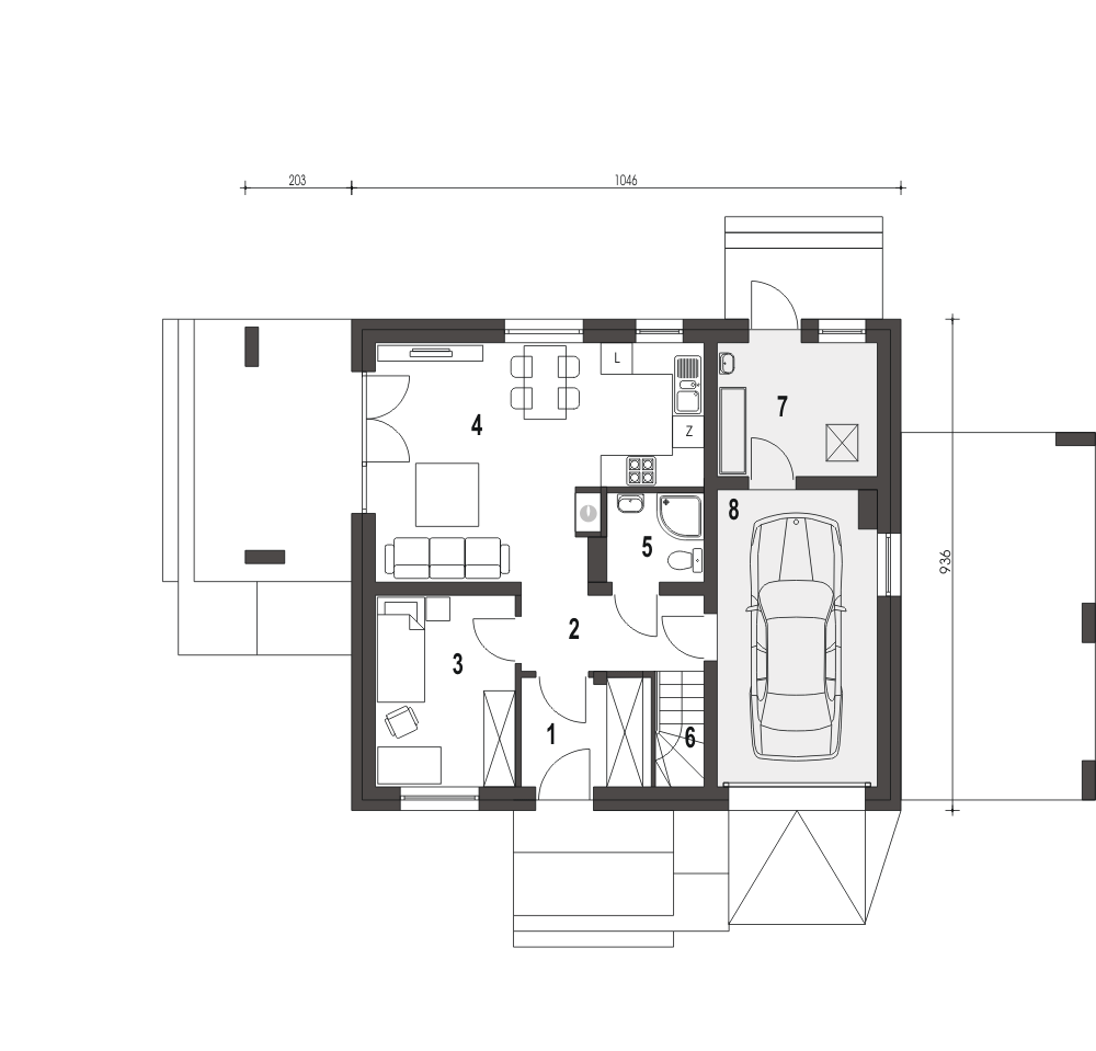
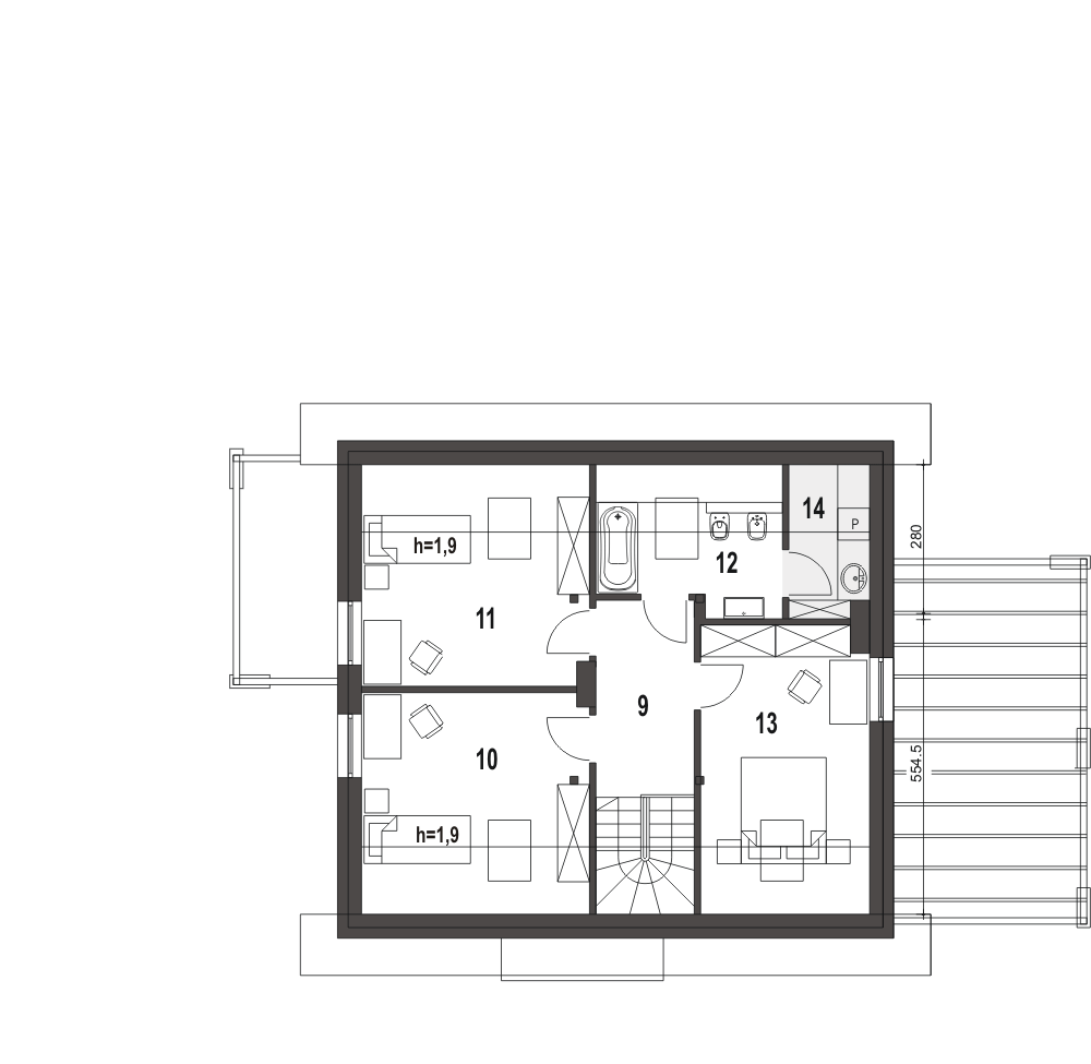
Monika to nieduży i prosty w budowie dom dla 4-osobowej rodziny. Posiada wbudowany garaż, kotłownię na paliwo stałe i dobudowaną wiatę.
