Informujemy, iż nasz sklep internetowy wykorzystuje technologię plików cookies a jednocześnie nie zbiera w sposób automatyczny żadnych informacji, z wyjątkiem informacji zawartych w tych plikach (tzw. „ciasteczkach”).

Francik z tarasem

  • Tylko online

Dane techniczne

powierzchnia
56 m²
wysokość
6.53 m
kąt dachu
45 °
szerokość działki
15.6 m
Liczba pokoi
3
Powierzchnia zabudowy
59.55
kondygnacje
parterowe
garaż
bez garażu
dach
dach dwuspadowy
konstrukcja
szkieletowe
zabudowa
domy wolnostojące
piwnica
bez piwnicy
kubatura
181 m³
dostępne odbicie lustrzane
Nie
Pow. użytkowa
56 m²
długość działki
16.45 m
Liczba łazienek
1
Pow. netto
60.43
Powierzchnia dachu
132.2 m²

Opis projektu

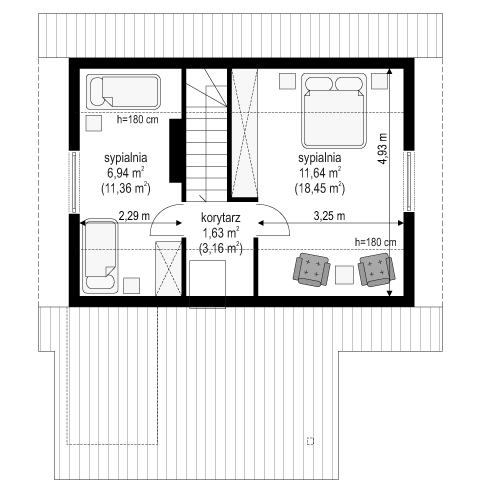
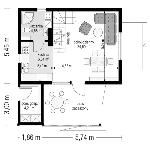
Projekt domu Francik z tarasem to nieduży domek o prostej, niedrogiej bryle, przekryty dwuspadowym dachem z dobudowanym zadaszonym tarasem. Ozdobą domu jest taras o powierzchni ponad 12 m²  stanowiący przedłużenie salonu. Na parterze prócz pokoju dziennego z kominkiem zaprojektowano również kuchnię, łazienkę i pomieszczenie gospodarcze dostępne z zewnątrz. Na poddaszu mieszczą się dwie sypialnie. Pracownia posiada projekt domu Francik z tarasem w wersji bez tarasu zadaszonego - w technologii murowanej i drewnianej.

Rzuty

Kondygnacja 1
Kondygnacja 3

Elewacje

Sytuacja

O autorze projektu Francik z tarasem

4 660 zł

Tylko u nas możesz negocjować cenę!
Skorzystaj z tej możliwości.

Lustrzane odbicie: niedostępne.

Masz dodatkowe pytania?
Zadzwoń lub zamów rozmowę.

Zamów rozmowę

Pomożemy Ci dopasować do twoich potrzeb mymarzony projekt, wpisz swój numer telefonu nasz konsultant oddzwoni.

Negocjuj cenę projektu Francik z tarasem

Zapytaj pytanie o projekt Francik z tarasem

Oceny i komentarze

Napisz swoją opinię