- Tylko online
Masz pytania? Chciałbyś negocjować cenę
Zadzwoń! 577 575 011
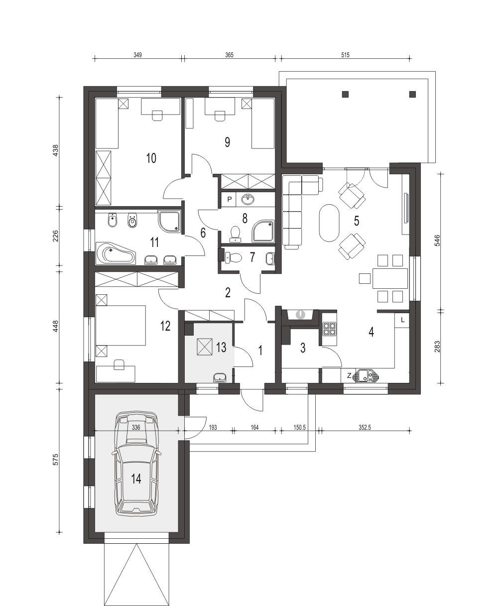
Projekt domu Nasturcja to ciekawa propozycja domu parterowego z garażem dla 4-osobowej rodziny.
