- Tylko online
Masz pytania? Chciałbyś negocjować cenę
Zadzwoń! 577 575 011
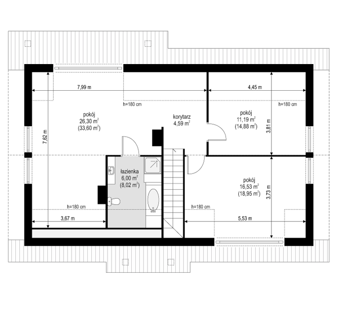
Projekt domu Fraszka to budynek jednorodzinny dla rodziny 4- 7-osobowej, z możliwością rozwoju i zmiennymi potrzebami lokalowymi. Dzięki dodatkowym pomieszczeniom na poddaszu i bliskości schodów od wejścia dom można z powodzeniem podzielić nawet na dwa niezależne mieszkania. Prostota konstrukcji domku Fraszka i łatwy do wykonania dach to niepodważalne zalety projektu. Na parterze prócz salonu połączonego z kuchnią i holem mamy trzy sypialnie. Na poddaszu mieszczą się dodatkowo trzy ładne pokoje. Dom może zamieszkiwać duża rodzina, lub dwie rodziny. Można też mieszkając na parterze wykorzystać poddasze jako jednoprzestrzenne studio o dowolnej funkcji - rekreacyjnej czy np. związanej z pracą. Pracownia posiada także projekt domu Fraszka w odbiciu lustrzanym. oraz projekt domu Fraszka 2. Zapraszamy!
