- Tylko online
Masz pytania? Chciałbyś negocjować cenę
Zadzwoń! 577 575 011
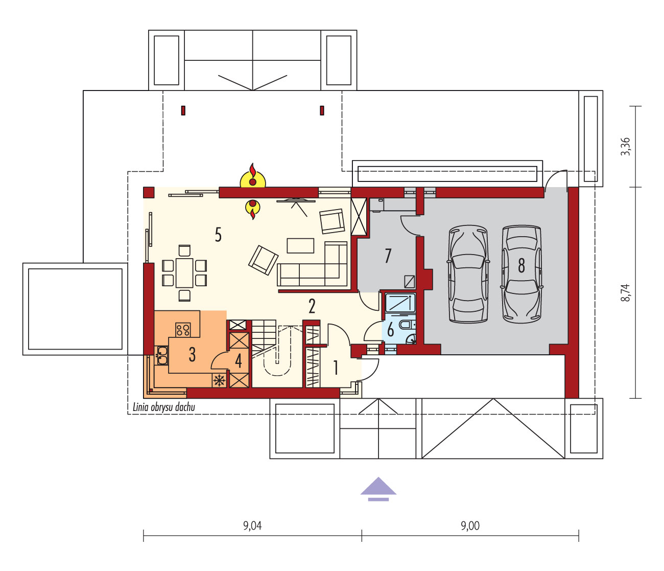
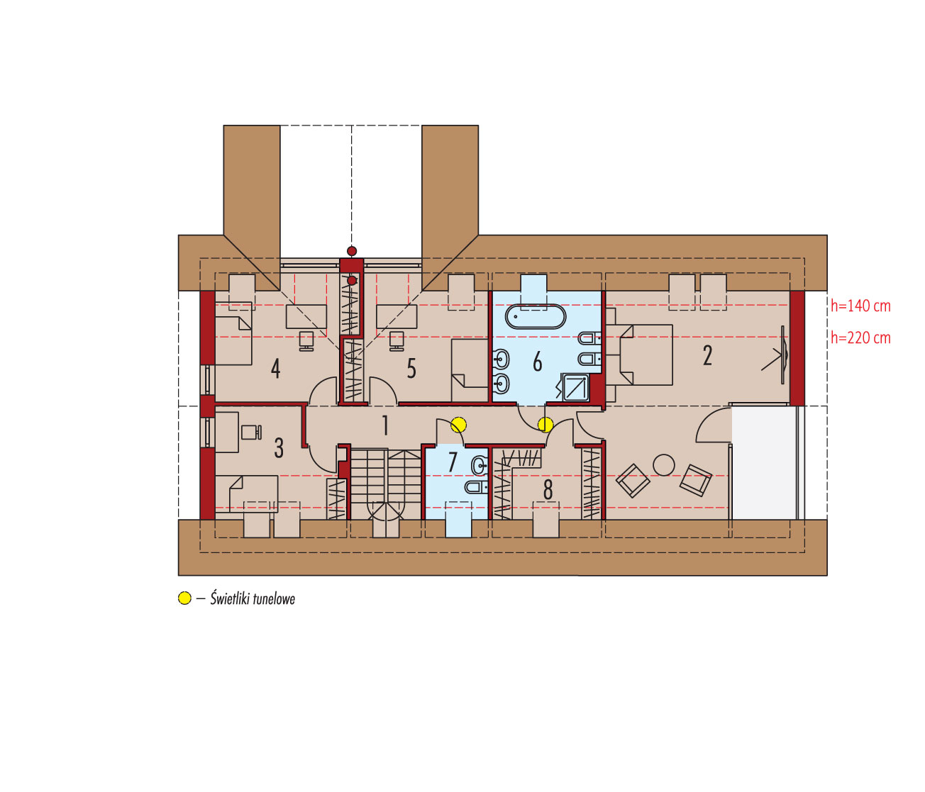
Charakterystyka: Dom parterowy z poddaszem użytkowym, niepodpiwniczony, z garażem dwustanowiskowym Przeznaczenie: Dom dla 3-5-osobowej rodzinyTechnologia i konstrukcja:Ściany zewnętrzne: murowane, dwuwarstwowe, beton komórkowy firmy Solbet 24 cm, ocieplenie styropian Termo Organika 20 cmŚciany wewnętrzne: nośne i działowe murowane, beton komórkowy firmy Solbet 24 cm i 12 cmStrop: międzypiętrowy gęstożebrowy TerivaDach: konstrukcja drewniana, ocieplenie wełna mineralna firmy Isover 30 cm, dachówka ceramiczna płaska Bergamo firmy RöbenSchody: schody wewnętrzne drewnianeInne: dom spełnia standardy Grupy Saint-Gobain; Marka Isover, Rigips i Weber zapewniają najwyższą jakość wbudowanych produktów: okładziny ścienne i sufitowe, paroizolacje, systemy podłogowe, zaprawy, kleje, hydroizolacjeRozwiązania instalacyjne:Ogrzewanie: kocioł gazowy kondensacyjny firmy Viessmann, rozprowadzenie ciepła: grzejniki firmy PurmoWentylacja: grawitacyjnaOZE: kolektory słoneczne firmy ViessmannWykończenie:Elewacje: płyty ROCKPANEL, okładzina drewniana i kamiennaStolarka: aluminiowa firmy Reynaers Aluminium lub drewniana, drzwi wejściowe i brama garażowa firmy HörmannOkna połaciowe: rozwiązania technologiczne firmy FakroOtoczenie: kostka betonowa i płyty tarasowe firmy Libet, system tarasowy ProDeck - deska kompozytowa Terra w kolorze orzechWersje w serii Nikolas - zapytaj o dostępność:- Nikolas – wersja podstawowa, standardowe instalacje: ogrzewanie gazowe, wentylacja grawitacyjna, system solarny- Nikolas II ENERGO PLUS - podobny układ funkcjonalny, inne wymiary budynku, energooszczędne instalacje: pompa ciepła i ogrzewanie podłogowe, wentylacja mechaniczna z rekuperacją, system solarny- Nikolas II ENERGO PLUS reco - energooszczędne instalacje firmy Vaillant: pompa ciepła, wentylacja mechaniczna z rekuperacją oraz system fotowoltaiczny, ogrzewanie podłogowe firmy Purmo- wszystkie wersje o podobnym układzie funkcji oraz z inną propozycją wykończenia elewacji- wszystkie wersje z trzema wariantami garaży: bez garażu, z garażem jedno- i dwustanowiskowym- odbicie lustrzane do każdej wersjiWszystkie wersje domów możliwe w dwóch standardach/wariantach instalacyjnych: - ENERGO: kocioł gazowy kondensacyjny, grzejniki, wentylacja grawitacyjna, OZE: kolektory słoneczne - ENERGO PLUS: pompa ciepła, ogrzewanie podłogowe, wentylacja mechaniczna, OZE: kolektory słoneczne lub panele fotowoltaiczneIstnieje techniczna możliwość:- podpiwniczenia budynku- wykonania budynku w technologii szkieletowej
Podoba mi się taki rodzaj drewna na elewacji, wcale nie kojarzy się z tradycyjnym drewnianym domem. Zachwyca też taras z kominkiem. I znowu- bardzo nowoczesny!

Nikolas 2G spełnia moje oczekiwania wobec dużego domu – dwa miejsca w garażu, duży pokój dzienny, duzo sypialni. Może szkoda, że jedna sypialnia nie ma swojej łazienki, widziałem juz na archido takie projekty. Ale pomysł z miejscem na stolik i fotele w sypialni tez jest w porządku.