- Tylko online
Masz pytania? Chciałbyś negocjować cenę
Zadzwoń! 577 575 011
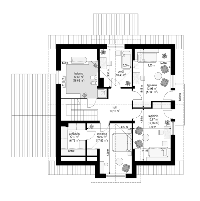
Projekt domu Gagatek to dom jednorodzinny dla rodziny 4- 6-osobowej. Parterowy budynek z poddaszem użytkowym, z dobudowanym garażem, przekryty dachami dwuspadowymi. Rzut parteru zbudowano na planie kwadratu z jasnym podziałem ścianami konstrukcyjnymi na dziewięć mniejszych części. Zasada taka daje bardzo czytelny, prosty i czysty układ konstrukcyjny budynku, co ułatwi realizację. W projekcie domu Gagatek także architektura zewnętrzna podporządkowana jest zasadzie symetrii - jedynym od niej odstępstwem jest dobudowany z boku garaż. Tradycyjny styl domu, z podcieniem wejściowym i kolumnami, z centralnie osadzonymi lukarnami, oraz z bocznym wykuszem jadalni, łączy się tutaj z zastosowanymi nowoczesnymi materiałami. Całość daje uniwersalny, ponadczasowy, a jednocześnie bezpretensjonalny wyraz. We wnętrzu domu, na parterze zaprojektowana została duża przestrzeń dzienna z salonem, jadalnią, holem i częściowo otwartą kuchnią. Na parterze przewidziano również miejsce na osobny pokój - gabinet lub sypialnię, oraz kotłownię i garaż. Na poddaszu zmieszczono aż cztery sypialnie, w tym jedną sypialnię rodziców z garderobą, oraz wygodną łazienkę. Pracownia posiada wersję projektu domu Gagatek w odbiciu lustrzanym.
