- Tylko online
Masz pytania? Chciałbyś negocjować cenę
Zadzwoń! 577 575 011
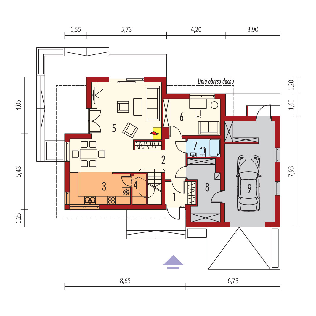
Charakterystyka: Dom parterowy z poddaszem użytkowym, niepodpiwniczony, z garażem jednostanowiskowymPrzeznaczenie: Dom dla 3-5-osobowej rodziny Technologia i konstrukcja:Ściany zewnętrzne: murowane, dwuwarstwowe, beton komórkowy 24 cm, ocieplenie wełna mineralna 12 cmStrop: międzypiętrowy gęstożebrowy TerivaDach: konstrukcja drewniana, ocieplenie wełna mineralna Isover 28 cm, dachówka ceramiczna płaska Bergamo firmy RöbenInne: schody wewnętrzne drewniane Rozwiązania instalacyjne:Ogrzewanie: kocioł gazowy kondensacyjny firmy Viessmann, rozprowadzenie ciepła: grzejniki firmy Purmo Wentylacja: grawitacyjna OZE: kolektory słoneczne firmy Viessmann Dodatkowo: stacja uzdatniania wody firmy ViessmannWykończenie:Elewacje: tynk cienkowarstwowy mineralny w kolorze TO-PA001 z palety firmy Termo Organika, okładzina drewnianaStolarka: drewniana, PVC lub aluminiowa, drzwi wejściowe i brama garażowa firmy Hörmann, rolety zewnętrzne w systemie CleverBox firmy BeCleverOkna połaciowe: rozwiązania technologiczne i wyłaz dachowy firmy FAKRO Otoczenie: system tarasowy ProDeck - deska kompozytowa Terra w kolorze orzechWersje - zapytaj o dostępność:- Patryk – bez garażu i z garażem dwustanowiskowym- Patryk II – mniejsza powierzchnia użytkowa, różne wersje garaży- Patryk III – zbliżona powierzchnia użytkowa, rozwiązania technologiczne firmy Rigips, ocieplenia w standardzie energo, inne wykończenie elewacji, różne wersje garaży- Patryk IV – większa powierzchnia użytkowa, podobny układ funkcjonalny, dach bez okapów, ocieplenia w standardzie energo, inne wykończenie elewacji, różne wersje garaży- Patryk Multi-Comfort – dom z rozwiązaniami materiałowo-technologicznymi Grupy Saint-Gobain, powierzchnia użytkowa zbliżona do wersji I, różne wersje garaży- Każdy budynek o innych wymiarach zewnętrznych- Odbicie lustrzane dla wszystkich wersji Istnieje techniczna możliwość:- podpiwniczenia budynku- wykonania budynku w technologii szkieletowej
