- Tylko online
Masz pytania? Chciałbyś negocjować cenę
Zadzwoń! 577 575 011
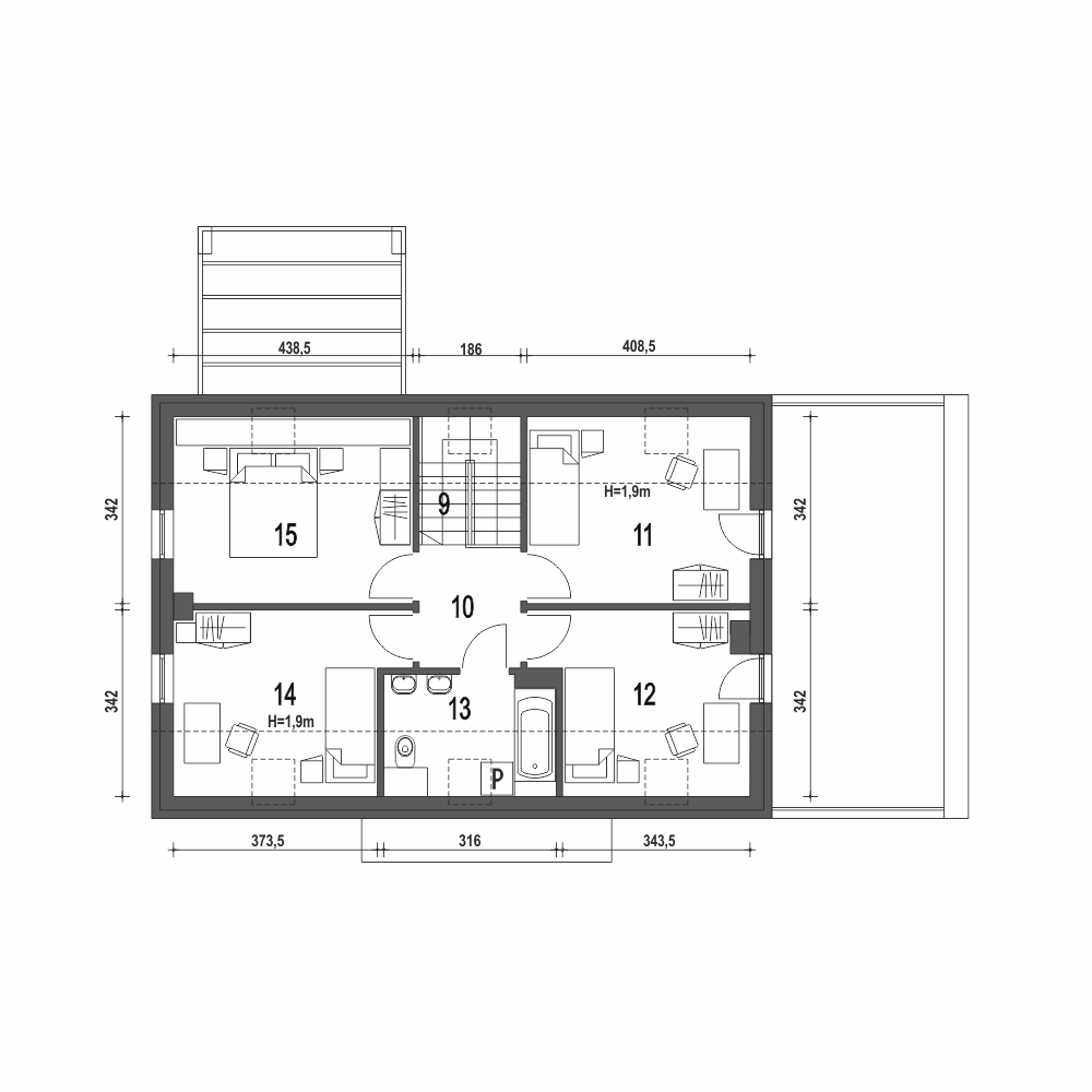
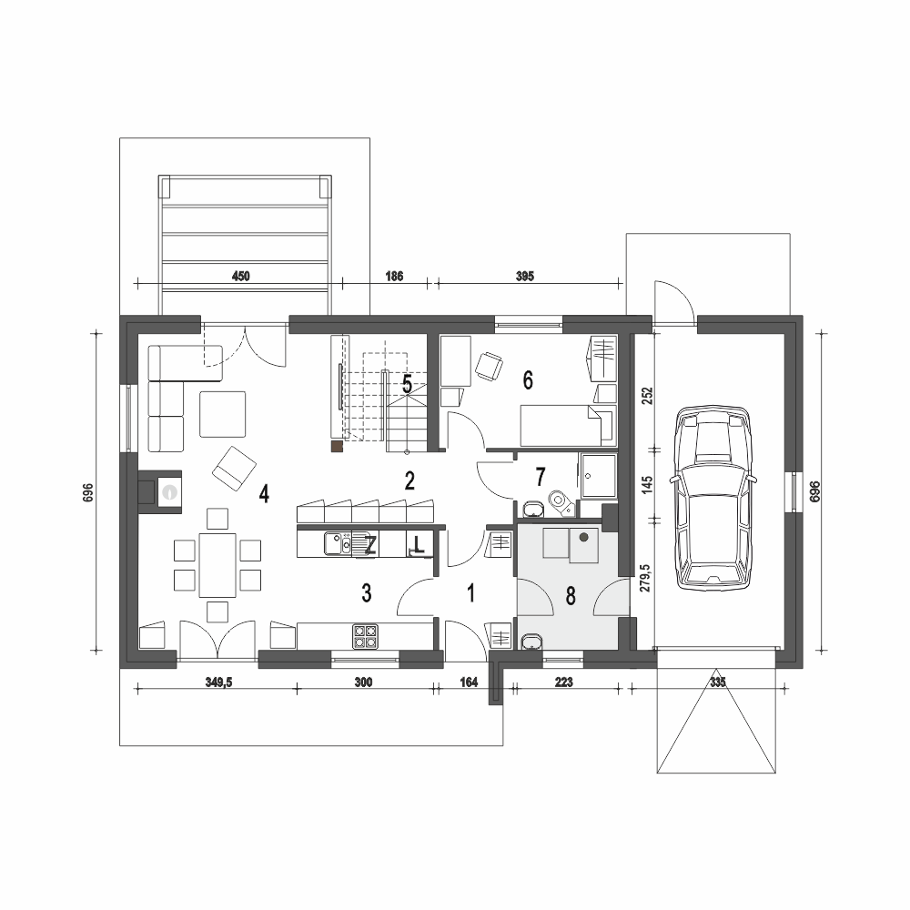
Eco 5 z garażem to projekt nowoczesnego domu z serii ECO (to seria projektów domów ekonomicznych: oszczędnych w kosztach budowy oraz w użytkowaniu,). Eco 5 to projekt przewidziany dla 4 osobowej rodziny. Na parterze przewiduje się cześć ogólną, z otwartym salonem, jadalnią, kuchnią, dodatkowym pokojem sypialnym i łazienką. Z wiatrołapu dostępna jest kotłownia na paliwo stałe, która ma również dostęp od przybudowanego garażu, co ułatwi np dostarczanie paliwa. Poddasze ze ścianką kolankową wys. 60cm, to część prywatna, obejmująca: aż cztery sypialnie oraz wspólną łazienkę. Dwie z sypialni mają zapewnione wyjście na obszerny taras zlokalizowany na dachu garażu. Eco 5 to atrakcyjny, funkcjonalny i energooszczędny dom z poddaszem użytkowym.
