- Tylko online
Masz pytania? Chciałbyś negocjować cenę
Zadzwoń! 577 575 011
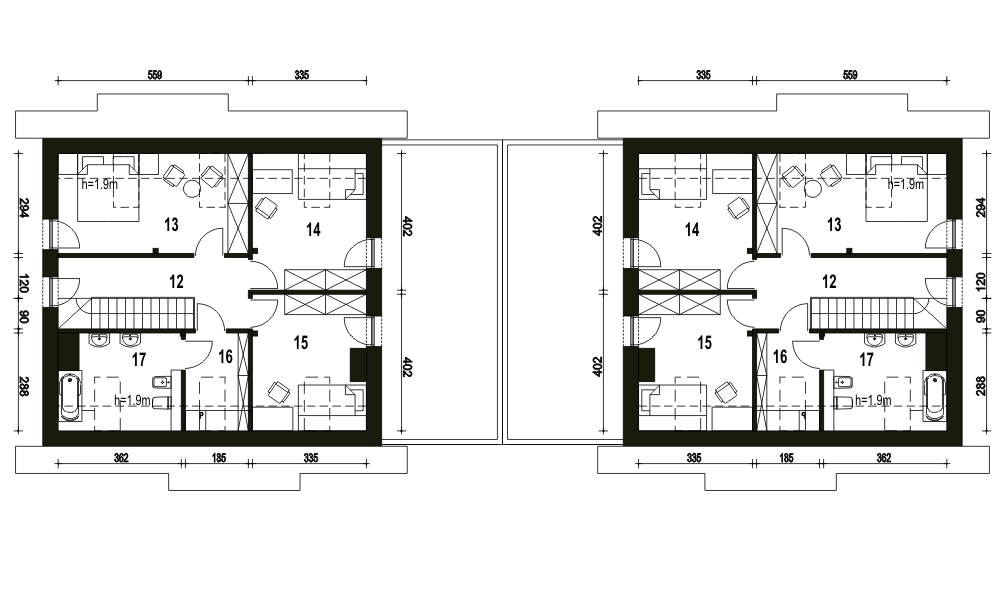
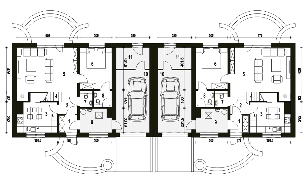
(Uwaga: projekty typu bliźniak oferujemy jako domy dwulokalowe, projekt można zamówić również w zabudowie bliźniaczej) Sosnówka A-BL1 powstała poprzez połączenie dwóch segmentów ścianami szczytowymi od strony garaży. Poniższy opis dotyczy jednego segmentu: Dom Sosnówka II zaprojektowano na rzucie prostokąta gdzie kalenica jest równoległa względem elewacji frontowej. Doskonale wpisze się na nieduże działki o średniej wielkości i ze względu na typowy kształt będzie się dobrze komponował w każdym otoczeniu. Ze względu na prostą formę projekt ten zalicza się do tanich w budowie i eksploatacji. Widać tu wyraźny podział na strefę dzienną na parterze oraz nocną na poddaszu.Pod schodami umieszczono kominek. Na parterze oprócz przestronnego salonu zaprojektowano osobną kuchnię oraz pokój gościnny z indywidualną łazienką. Na tym poziomie mamy także wc oraz pomieszczenie z piecem co przez które dostaniemy się do garażu.Na poddaszu zaplanowano 3 sypialnie oraz łazienkę i garderobę.
