- Tylko online
Masz pytania? Chciałbyś negocjować cenę
Zadzwoń! 577 575 011
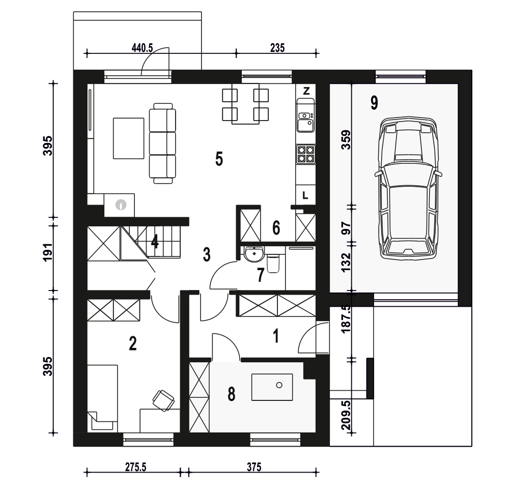
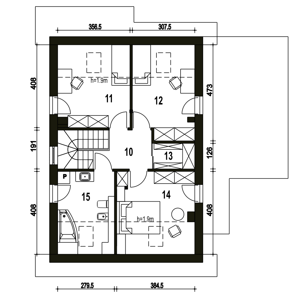
Projekt domu Głuszec jest przykładem klasycznego domu jednorodzinnego z poddaszem przeznaczonym na cele mieszkalne. Ten dwukondygnacyjny i prosty konstrukcyjnie dom jest dobrą alternatywą na wąskie działki lub do zabudowy bliźniaczej. do budynku prowadzi zadaszone wejście usytuowane z boku budynku. Połączono je z dużą wiatą przed domem. Na parterze zaproponowano strefę wspólną a także dodatkowy pokój mogacy pełnić funkcję gościnnego lub gabinetu. Z salonu z jadalnią i kuchnią można wyjść na taras i kominek. W kuchni znajdziemy spiżarnię a obok niej łazienkę. Dużą kotłownię zaprojektowano od frontu budynku. Na piętrze w projekcie zaproponowano trzy sypialnie, garderobę oraz duża łazienkę. Głuszec to dom ekonomiczny w budowie i eksploatacji. Ze względów ekonomicznych zrezygnowano z balkonów i tarasów. Zastosowane portfenetry i dodatkowo okna połaciowe sprawią, że każde pomieszczenie na poddaszu będzie doskonale doświetlone. Elewacę domu charakteryzuje delikatny detal i naturalna kolorystyka.
