- Tylko online
Masz pytania? Chciałbyś negocjować cenę
Zadzwoń! 577 575 011
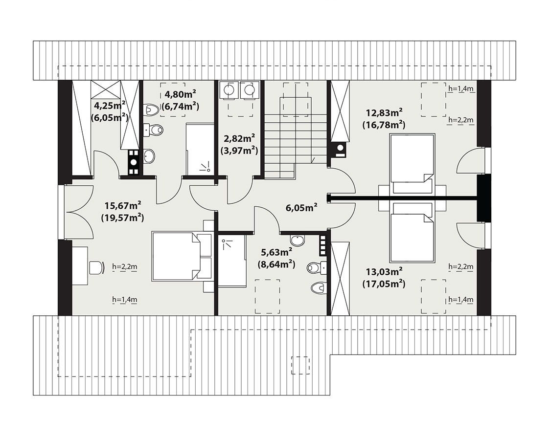
Fila to jednorodzinny budynek mieszkalny, parterowy z użytkowym poddaszem i jednostanowiskowym garażem. Bogaty i funkcjonalny układ pomieszczeń gwarantuje optymalny komfort wieloosobowej rodzinie. Ergonomicznie zaprojektowana i wyraźnie podzielona przestrzeń mieszkalna składa się ze strefy dziennej, nocnej i gospodarczej. Najbardziej reprezentacyjna część domu, to salon połączony z jadalnią, który otwiera się na duży taras oraz kuchnia ze spiżarnią i łazienką. Oprócz części dziennej przewidziano na parterze dodatkowy pokój, który można wykorzystać na gabinet lub kolejną sypialnię. Na poddaszu przewidziano 3 sypialnie, łazienkę oraz pralnię. Największa sypialnia posiada własną łazienkę oraz garderobą. Dużą kotłownię, na każdy rodzaj paliwa oraz jednostanowiskowy garaż zlokalizowano w części gospodarczej domu. Geometria rzutu, harmonia bryły oraz prostota nowoczesnych elewacji czynią ten dom nie tylko łatwym w eksploatacji i utrzymaniu ale również niezwykle eleganckim.
