- Tylko online
Masz pytania? Chciałbyś negocjować cenę
Zadzwoń! 577 575 011
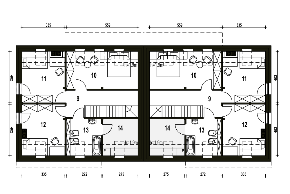
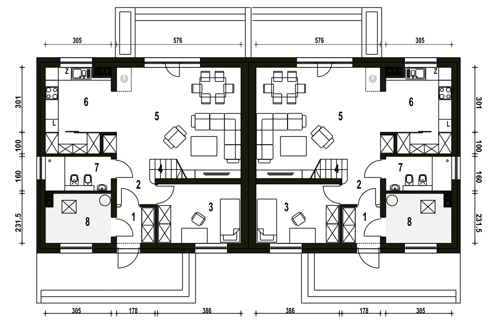
(Uwaga: projekty typu bliźniak oferujemy jako domy dwulokalowe, projekt można zamówić również w zabudowie bliźniaczej) Sosnówka B-BL2 powstanie poprzez połączenie segmentów od strony salonów. Poniższy opis dotyczy jednego segmentu: Dom Sosnówka zaprojektowano na rzucie prostokąta gdzie kalenica jest równoległa względem elewacji frontowej. Doskonale wpisze się na nieduże działki o średniej wielkości. Projekt zawiera w parterze; salon z kuchnią i kominkiem z dostępem do części tarasowej, łazienkę, pokój gościnny oraz w części komunikacyjnej wiatrołap i hol. Mamy tu także kotłownię,za nią pralnię . Poddasze, na które prowadzą jednobiegowe schody to 3 sypialnie z dostępem do dużego tarasu oraz łazienka. Minimalistyczny ale jednocześnie ciepły wizerunek Sosnówki oraz jej typowy kształt sprawią że będzie się dobrze komponowała w każdym otoczeniu.
