- Tylko online
Masz pytania? Chciałbyś negocjować cenę
Zadzwoń! 577 575 011
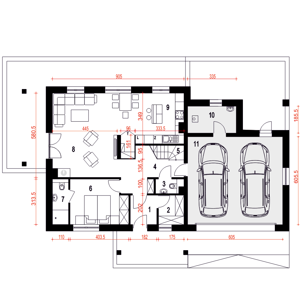
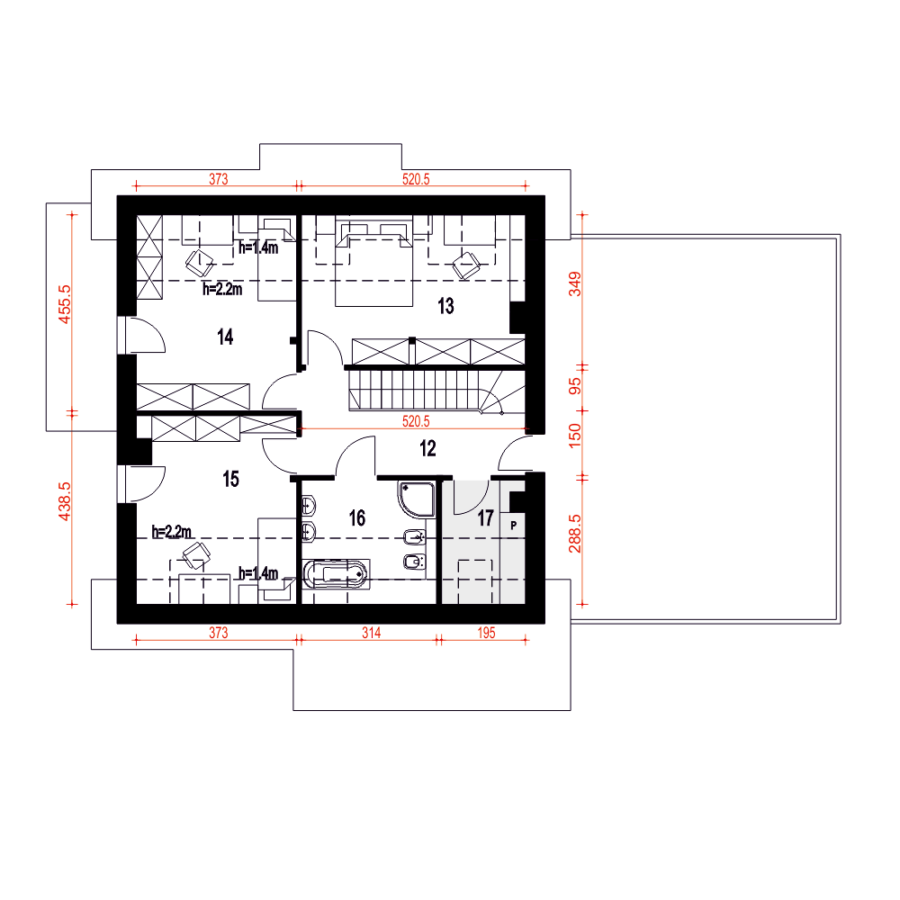
Strzyżyk II to propozycja dla 4-5 osobowej rodziny. Bryła budynku przekryta jest dwuspadowym dachem. Układ funkcjonalny domu dostosowano do potrzeb mieszkańców. Wejście do domu prowadzi przez wiatrołap do holu wokół którego zlokalizowano salon z otwartą kuchnią i spiżarnią oraz kominkiem oraz pokój gościnny z łazienką. Dom wyposażono w pomieszczenie z piecem co oraz garaż.Poddasze stanowi strefa nocna, znajdziemy tu trzy sypialnie, łazienkę oraz garderobę. Zewnętrzny wizerunek budynku cechuje prostota i elegancja.
