- Tylko online
Masz pytania? Chciałbyś negocjować cenę
Zadzwoń! 577 575 011
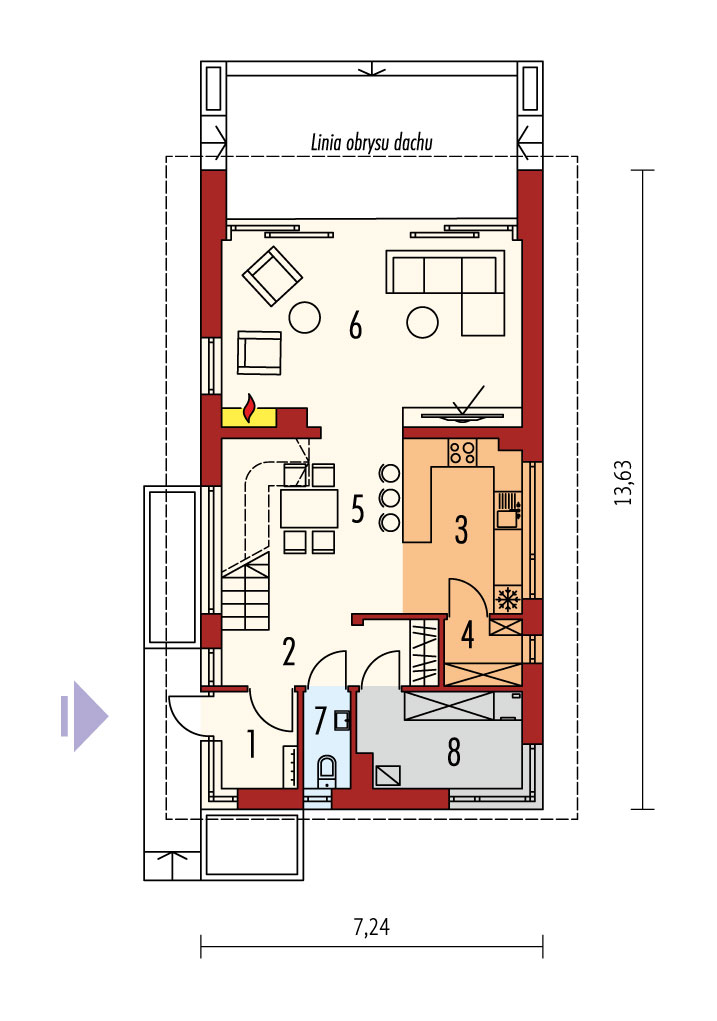
Charakterystyka: Dom piętrowy, niepodpiwniczonyPrzeznaczenie: Dom dla 3-4-osobowej rodziny Technologia i konstrukcja:Ściany zewnętrzne: murowane, dwuwarstwowe, beton komórkowy firmy Solbet 24 cm, ocieplenie styropian Termo Organika 20 cmŚciany wewnętrzne: nośne i działowe murowane, beton komórkowy firmy Solbet 24 cm i 12 cmStrop: międzypiętrowy gęstożebrowy TerivaDach: konstrukcja drewniana, ocieplenie wełna mineralna Isover 30 cm, dachówka ceramiczna płaska Bergamo firmy Röben, więźba dachowa dostępna również w prefabrykacji drewnianej w systemie płytki kolczastej MitekInne: schody wewnętrzne drewniane Rozwiązania instalacyjne:Ogrzewanie: kocioł gazowy kondensacyjny firmy Viessmann, rozprowadzenie ciepła: grzejniki firmy PurmoWentylacja: grawitacyjna OZE: kolektory słoneczne Wykończenie:Elewacje: tynk cienkowarstwowy mineralny w kolorze białym TO-PA001 z palety firmy Termo Organika, okładzina klinkierowa firmy Röben w kolorze szarym, np. typ Margate, Aarhus, Calais lub FaroStolarka: drewniana, PVC lub aluminiowa, drzwi tarasowe podnoszono-przesuwne typu HS aluminiowo-drewniane Innowiev firmy Fakro, drzwi zewnętrzne energooszczędne firmy HörmannOtoczenie: kostka betonowa i płyty tarasowe firmy Libet, system tarasowy ProDeck - deska kompozytowa Terra w kolorze orzechWersje w serii Mika - zapytaj o dostępność: - Mika, Mika II – domy piętrowe o podobnym układzie funkcjonalnym, z innymi propozycjami wykończenia elewacji i zagospodarowania otoczenia - odbicie lustrzane do każdej wersjiWszystkie wersje domów możliwe w dwóch standardach/wariantach instalacyjnych: - ENERGO: kocioł gazowy kondensacyjny, kolektory słoneczne, grzejniki, wentylacja grawitacyjna - ENERGO PLUS: pompa ciepła, ogrzewanie podłogowe, wentylacja mechaniczna, dodatkowo system solarny lub panele fotowoltaiczne Istnieją techniczne możliwości wykonania zmian: - podpiwniczenia budynku - wykonania budynku w technologii szkieletowej - dokonania zmian funkcjonalnych wg indywidualnych wymagań
